Plan Pricing

$0

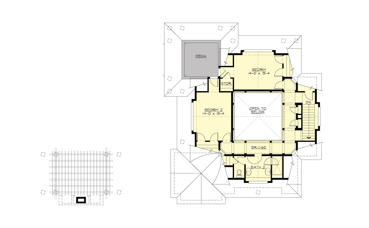
RIVERHAVEN

A2045A2SU-0
  • Total Area:2045 Sq. Ft.
  • Garage Area:2190 Sq Ft
  • Garage Size:2
  • Stories:3
  • Bedrooms:2
  • Full Baths:3
  • Width:55'-6"
  • Depth:47'-6"
  • Height:24'-0"
  • Foundation:Slab
PLAN DETAILS FOR THE RIVERHAVEN - PLAN A2045A2SU-0
Area Summary
  • Total Area:2045 Sq. Ft.
  • Main Floor:1205 Sq. Ft.
  • Upper Floor:840 Sq. Ft.
  • Garage Floor:2190 Sq. Ft.
General Information
  • Stories:3
  • Width:55'-6"
  • Depth:47'-6"
  • Height:24'-0"
Architectural Style
  • Cape Cod
  • Carriage
  • Hampton
Number of Rooms
  • Bedrooms:2
  • Full Baths:3
Garage
  • Garage Size:2
  • Garage Door Location:Side
  • Garage Type: Under
Roof Pitches
  • Primary:6:12
  • Secondary:24:12
Wall Heights
  • Main:9'-0"
  • Upper:9'-0"
  • Lower:12'-0"
Foundation Type
  • Slab On Grade
Roof Framing
  • Trusses
Floor Load
  • Live (lbs):40 PSF
  • Dead (lbs):10 PSF
Roof Load
  • Live (lbs):25 PSF
  • Dead (lbs):15 PSF
  • Wind:85 MPH
Design Features
  • Wrap-Around Porch
  • Great Room
  • Laundry Room @ Main Floor
  • Cape Cod House Plans
  • Carriage House Plans
  • Hampton House Plans
  • Luxury Home Designs
Front Rendering

Chathambury

M4255A3S-0
  • Total Area:4350 Sq. Ft.
  • Stories:2
  • Bedrooms:4
  • Full Baths:3
Front Rendering

Chatham Grove

M7785A2S2F2RD-0DB
  • Total Area:11000 Sq. Ft.
  • Stories:4
  • Bedrooms:6
  • Full Baths:5
Front Rendering

Chatham Cove

M7785A2S2F2RD-0
  • Total Area:7895 Sq. Ft.
  • Stories:3
  • Bedrooms:4
  • Full Baths:4
Front Exterior

Chatham

M7550A4S-0
  • Total Area:7900 Sq. Ft.
  • Stories:2
  • Bedrooms:4
  • Full Baths:5
Front Rendering

Chatham Meadows

M7550A4S-1
  • Total Area:9250 Sq. Ft.
  • Stories:4
  • Bedrooms:4
  • Full Baths:5
Front Photo

Chatham Hill

M7550A5S-0DB
  • Total Area:10275 Sq. Ft.
  • Stories:3
  • Bedrooms:5
  • Full Baths:6
Front Rendering

Chatham Downs

M7915A4S-0
  • Total Area:7915 Sq. Ft.
  • Stories:2
  • Bedrooms:5
  • Full Baths:6
Front Rendering

Rowandale

M7985A5FAT-0
  • Total Area:7985 Sq. Ft.
  • Stories:3
  • Bedrooms:5
  • Full Baths:5
Front Rendering

Chatham Cottage

A1285A4FT-0
  • Total Area:1285 Sq. Ft.
  • Stories:2
  • Bedrooms:1
  • Full Baths:1
Front Rendering

Chatham Knoll

M5900A3S-0
  • Total Area:5900 Sq. Ft.
  • Stories:2
  • Bedrooms:4
  • Full Baths:4
Rear Rendering

Riverhouse

A2045A0-0
  • Total Area:2330 Sq. Ft.
  • Stories:2
  • Bedrooms:3
  • Full Baths:2
Please enter the zip code of your building site, then select the Go! button to view pricing information for this house plan.

Recent View

Front Rendering

Rosemont

M4465A4S-0
  • Total Area:4465 Sq. Ft.
  • Stories:2
  • Bedrooms:4
  • Full Baths:4
Front Photo

Versailles

M4824B3S-1R
  • Total Area:4994 Sq. Ft.
  • Stories:2
  • Bedrooms:4
  • Full Baths:4
© 2023 Architects Northwest All Rights Reserved Powered By: Visualwebz