Plan Pricing

$0

CROWS VIEW

M3440A3F-0
  • Total Area:3546 Sq. Ft.
  • Garage Area:798 Sq Ft
  • Garage Size:3
  • Stories:3
  • Bedrooms:5
  • Full Baths:3
  • Half Baths:1
  • Width:62'-0"
  • Depth:40'-0"
  • Height:33'-6"
  • Foundation:Crawl Space
PLAN DETAILS FOR THE CROWS VIEW - PLAN M3440A3F-0
Area Summary
  • Total Area:3546 Sq. Ft.
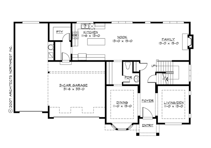
  • Main Floor:1346 Sq. Ft.
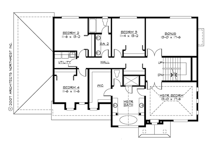
  • Upper Floor:1705 Sq. Ft.
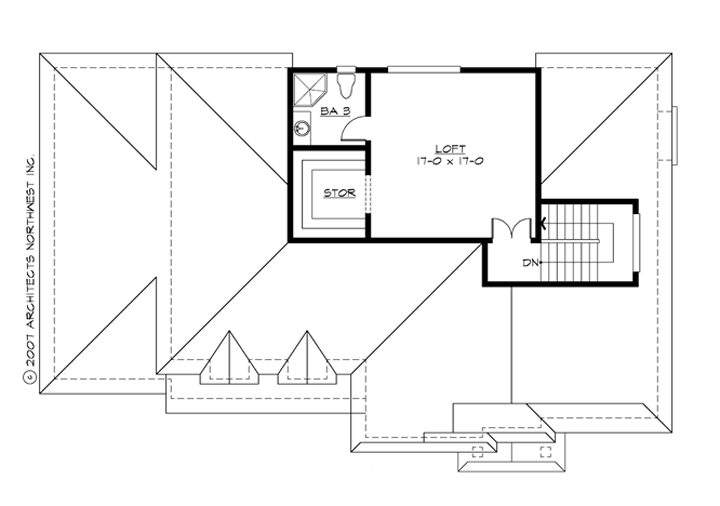
  • 3rd Floor:495 Sq. Ft.
  • Garage Floor:798 Sq. Ft.
General Information
  • Stories:3
  • Width:62'-0"
  • Depth:40'-0"
  • Height:33'-6"
Architectural Style
  • Hampton
  • Shingle
  • Traditional
Number of Rooms
  • Bedrooms:5
  • Full Baths:3
  • Half Baths:1
Garage
  • Garage Size:3
  • Garage Door Location:Front
Roof Pitches
  • Primary:8:12
Wall Heights
  • Main:9'-0"
  • Upper:9'-0"
  • Third:8'-0"
Foundation Type
  • Crawl Space
Roof Framing
  • Trusses
Floor Load
  • Live (lbs):40 PSF
  • Dead (lbs):10 PSF
Roof Load
  • Live (lbs):25 PSF
  • Dead (lbs):15 PSF
  • Wind:85 MPH
Design Features
  • Bonus Space @ & Upper Floor
  • Great Room
  • Laundry Room @ & Upper Floor
  • Master Bedroom @ Upper Floor Front
  • Hampton House Plans
  • Shingle House Plans
  • Traditional House Plans
  • View Lot (Front) Plans
  • Wide Lot House Plans
Front Photo

Marble Manor

M3295A2F-0
  • Total Area:3295 Sq. Ft.
  • Stories:2
  • Bedrooms:4
  • Full Baths:3
Front Rendering

Marble Meadows

M3295A3F-5
  • Total Area:3295 Sq. Ft.
  • Stories:2
  • Bedrooms:4
  • Full Baths:3
Front Rendering

Crows Nest

M3440A2F-0
  • Total Area:3440 Sq. Ft.
  • Stories:3
  • Bedrooms:5
  • Full Baths:3
Front Rendering

Crows Ridge

M3440A2F-10
  • Total Area:3635 Sq. Ft.
  • Stories:3
  • Bedrooms:5
  • Full Baths:3
Front Rendering

Crows Crest

M3440A3FT-5
  • Total Area:3770 Sq. Ft.
  • Stories:3
  • Bedrooms:5
  • Full Baths:3
Front Rendering

Mill Creek

M2940A2F-0
  • Total Area:2940 Sq. Ft.
  • Stories:2
  • Bedrooms:4
  • Full Baths:2
Front Rendering

Millbrook

M2940A2F-10
  • Total Area:3065 Sq. Ft.
  • Stories:2
  • Bedrooms:4
  • Full Baths:3
Front Photo

Millwood

M2940A3F-0
  • Total Area:2965 Sq. Ft.
  • Stories:2
  • Bedrooms:4
  • Full Baths:2
Front Rendering

Milltown

M2940A3FT-10
  • Total Area:3115 Sq. Ft.
  • Stories:2
  • Bedrooms:4
  • Full Baths:3
Please enter the zip code of your building site, then select the Go! button to view pricing information for this house plan.

Recent View

© 2023 Architects Northwest All Rights Reserved Powered By: Visualwebz