Plan Pricing

$0

MIRRORMONT

M3450B3S-0
  • Total Area:3450 Sq. Ft.
  • Garage Area:768 Sq Ft
  • Garage Size:3
  • Stories:2
  • Bedrooms:4
  • Full Baths:3
  • Width:52'-0"
  • Depth:82'-0"
  • Height:24'-6"
  • Foundation:Crawl Space
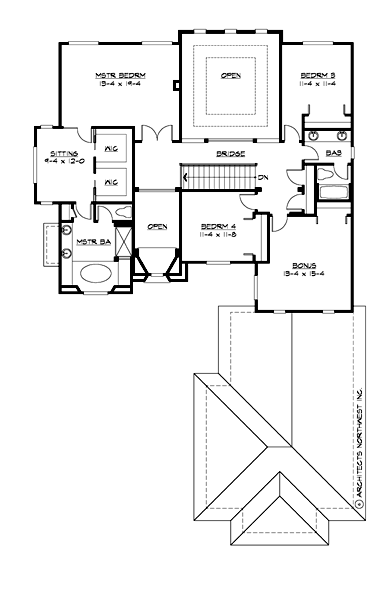
PLAN DETAILS FOR THE MIRRORMONT - PLAN M3450B3S-0
Area Summary
  • Total Area:3450 Sq. Ft.
  • Main Floor:1885 Sq. Ft.
  • Upper Floor:1565 Sq. Ft.
  • Garage Floor:768 Sq. Ft.
General Information
  • Stories:2
  • Width:52'-0"
  • Depth:82'-0"
  • Height:24'-6"
Architectural Style
  • Chateau
  • European
  • Traditional
Number of Rooms
  • Bedrooms:4
  • Full Baths:3
Garage
  • Garage Size:3
  • Garage Door Location:Side
Roof Pitches
  • Primary:4:12
Wall Heights
  • Main:9'-0"
  • Upper:8'-0"
Foundation Type
  • Crawl Space
Roof Framing
  • Trusses
Floor Load
  • Live (lbs):40 PSF
  • Dead (lbs):10 PSF
Roof Load
  • Live (lbs):25 PSF
  • Dead (lbs):15 PSF
  • Wind:85 MPH
Design Features
  • Bonus Space @ & Upper Floor
  • Den/Office
  • Great Room
  • Laundry Room @ Main Floor
  • Master Bedroom @ Upper Floor Rear
  • Chateau House Plans
  • European House Plans
  • Traditional House Plans
  • Narrow Lot House Plans
Front Photo

Granite Falls

M3450A3S-0
  • Total Area:3450 Sq. Ft.
  • Stories:2
  • Bedrooms:4
  • Full Baths:3
Front Photo

Granite Lake

M3454A3S-0
  • Total Area:3438 Sq. Ft.
  • Stories:2
  • Bedrooms:4
  • Full Baths:3
Please enter the zip code of your building site, then select the Go! button to view pricing information for this house plan.

Recent View

© 2023 Architects Northwest All Rights Reserved Powered By: Visualwebz