Plan Pricing

$0

ALSTON PARK

M3452A2F-0FB
  • Total Area:4911 Sq. Ft.
  • Garage Area:457 Sq Ft
  • Garage Size:2
  • Stories:3
  • Bedrooms:4
  • Full Baths:4
  • Half Baths:1
  • Width:40'-0"
  • Depth:82'-0"
  • Height:23'-6"
  • Foundation:Basement
PLAN DETAILS FOR THE ALSTON PARK - PLAN M3452A2F-0FB
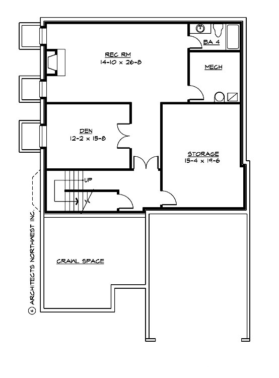
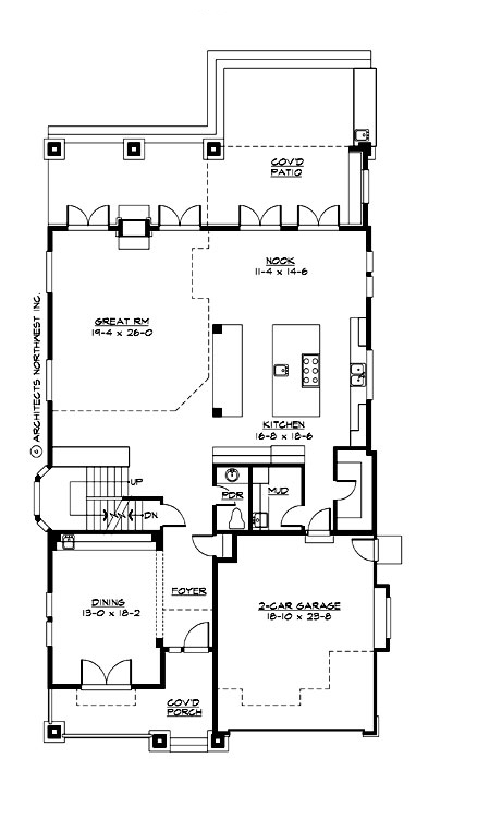
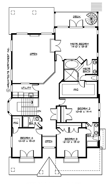
Area Summary
  • Total Area:4911 Sq. Ft.
  • Main Floor:1809 Sq. Ft.
  • Upper Floor:1645 Sq. Ft.
  • Lower Floor:1457 Sq. Ft.
  • Garage Floor:457 Sq. Ft.
General Information
  • Stories:3
  • Width:40'-0"
  • Depth:82'-0"
  • Height:23'-6"
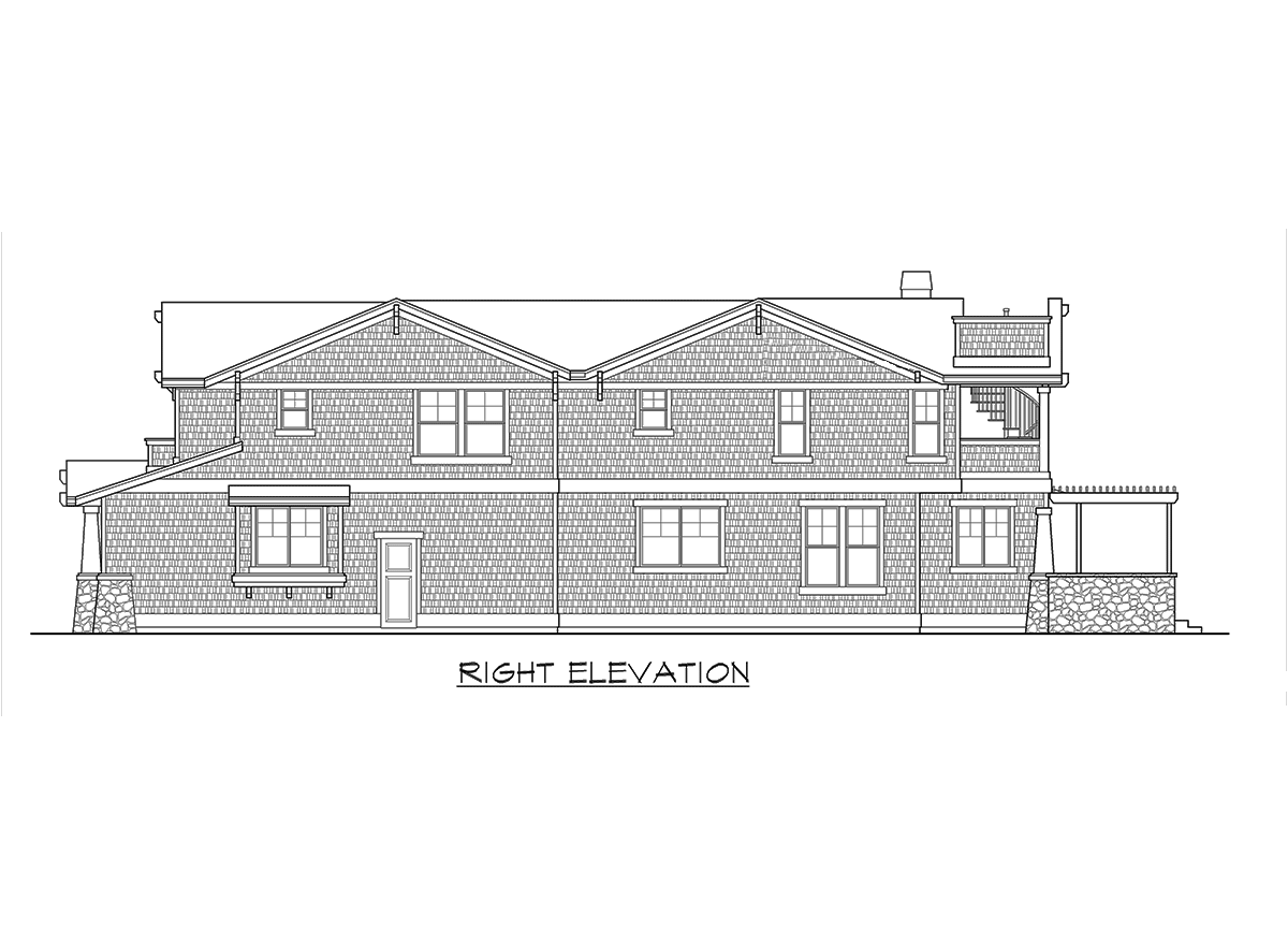
Architectural Style
  • Craftsman
  • Northwest
  • Shingle
Number of Rooms
  • Bedrooms:4
  • Full Baths:4
  • Half Baths:1
Garage
  • Garage Size:2
  • Garage Door Location:Front
Roof Pitches
  • Primary:5:12
  • Secondary:8:12
Wall Heights
  • Main:9'-0"
  • Upper:8'-0"
  • Lower:8'-0"
Foundation Type
  • Cellar Basement
Roof Framing
  • Trusses
Floor Load
  • Live (lbs):40 PSF
  • Dead (lbs):10 PSF
Roof Load
  • Live (lbs):25 PSF
  • Dead (lbs):15 PSF
  • Wind:85 MPH
Design Features
  • Bonus Space @ & Lower Floor
  • Den/Office
  • Front Porch
  • Great Room
  • Laundry Room @ Main & Upper Floor
  • Master Bedroom @ Upper Floor Rear
  • Craftsman House Plans
  • Northwest Floor Plans
  • Shingle House Plans
  • Narrow Lot House Plans
  • View Lot (Rear) Plans
Front Photo

Alston

M3452A2F-0
  • Total Area:3454 Sq. Ft.
  • Stories:2
  • Bedrooms:4
  • Full Baths:3
Please enter the zip code of your building site, then select the Go! button to view pricing information for this house plan.

Recent View

© 2023 Architects Northwest All Rights Reserved Powered By: Visualwebz