Plan Pricing

$0

ASTORIA COTTAGE

A825A5RT-0
  • Total Area:825 Sq. Ft.
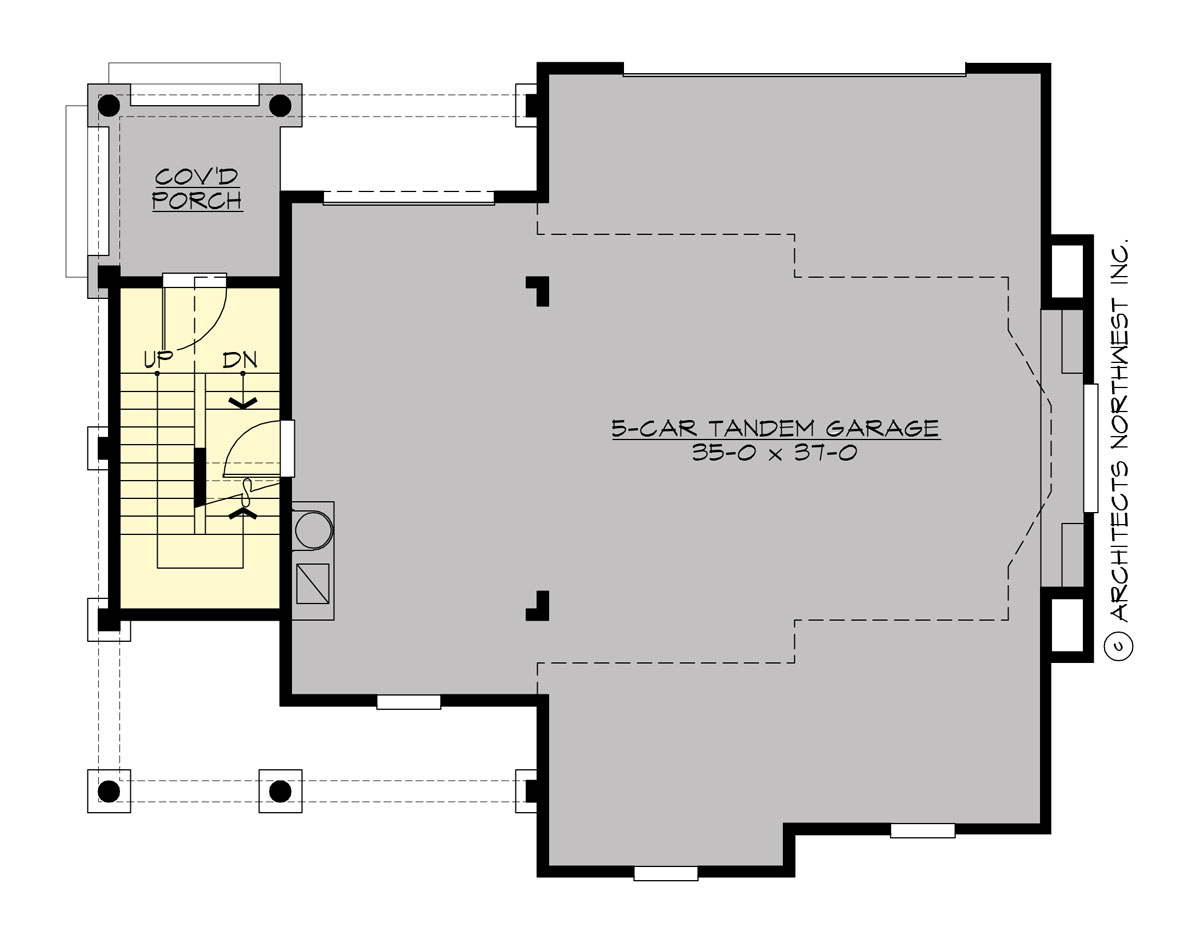
  • Garage Area:1215 Sq Ft
  • Garage Size:5+
  • Stories:2
  • Bedrooms:1
  • Full Baths:1
  • Width:47'-0"
  • Depth:38'-0"
  • Height:32'-0"
  • Foundation:Slab
PLAN DETAILS FOR THE ASTORIA COTTAGE - PLAN A825A5RT-0
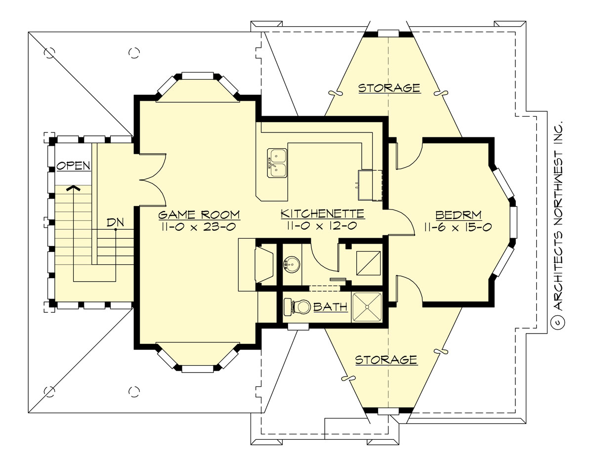
Area Summary
  • Total Area:825 Sq. Ft.
  • Main Floor:130 Sq. Ft.
  • Upper Floor:695 Sq. Ft.
  • Garage Floor:1215 Sq. Ft.
General Information
  • Stories:2
  • Width:47'-0"
  • Depth:38'-0"
  • Height:32'-0"
Architectural Style
  • Farmhouse
  • Shingle
  • Victorian
Number of Rooms
  • Bedrooms:1
  • Full Baths:1
Garage
  • Garage Size:5+
  • Garage Door Location:Rear
  • Garage Type: Tandem
Roof Pitches
  • Primary:10:12
  • Secondary:4:12
Wall Heights
  • Main:8'-0"
  • Upper:10'-0"
Foundation Type
  • Slab On Grade
Roof Framing
  • Trusses
Floor Load
  • Live (lbs):40 PSF
  • Dead (lbs):10 PSF
Roof Load
  • Live (lbs):25 PSF
  • Dead (lbs):15 PSF
  • Wind:85 MPH
Design Features
  • Best Selling Plans
  • Green Plans
  • Rear Porch
  • Great Room
  • Laundry Room @ & Upper Floor
  • Farmhouse Home Plans
  • Shingle House Plans
  • Victorian House Designs
  • Luxury Home Designs
Front Picture

Astoria

M4725A4S-1
  • Total Area:5250 Sq. Ft.
  • Stories:2
  • Bedrooms:4
  • Full Baths:4
Front of House

Astoria Manor

M4725A3S-0
  • Total Area:5467 Sq. Ft.
  • Stories:2
  • Bedrooms:4
  • Full Baths:4
Please enter the zip code of your building site, then select the Go! button to view pricing information for this house plan.

Recent View

© 2023 Architects Northwest All Rights Reserved Powered By: Visualwebz