Plan Pricing

$0

PROMONTORY

M4411A3FT-0DB
  • Total Area:4441 Sq. Ft.
  • Garage Area:598 Sq Ft
  • Garage Size:3
  • Stories:4
  • Bedrooms:4
  • Full Baths:3
  • Half Baths:1
  • Width:35'-0"
  • Depth:69'-0"
  • Height:23'-6"
  • Foundation:Basement
PLAN DETAILS FOR THE PROMONTORY - PLAN M4411A3FT-0DB
Area Summary
  • Total Area:4441 Sq. Ft.
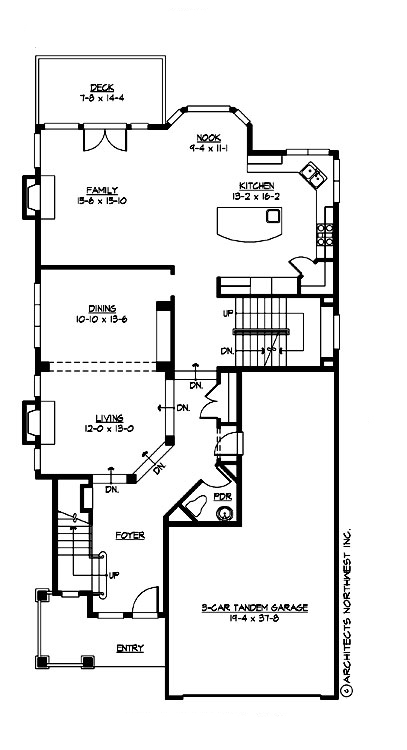
  • Main Floor:1532 Sq. Ft.
  • Upper Floor:969 Sq. Ft.
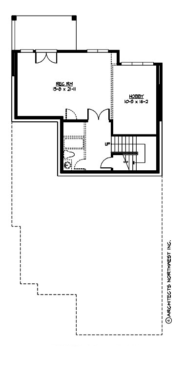
  • 3rd Floor:860 Sq. Ft.
  • Lower Floor:1050 Sq. Ft.
  • Garage Floor:598 Sq. Ft.
General Information
  • Stories:4
  • Width:35'-0"
  • Depth:69'-0"
  • Height:23'-6"
Architectural Style
  • Craftsman
  • Northwest
  • Shingle
Number of Rooms
  • Bedrooms:4
  • Full Baths:3
  • Half Baths:1
Garage
  • Garage Size:3
  • Garage Door Location:Front
  • Garage Type: Tandem
Roof Pitches
  • Primary:6:12
  • Secondary:4:12
Wall Heights
  • Main:9'-0"
  • Upper:9'-0"
  • Lower:9'-0"
  • Third:8'-0"
Foundation Type
  • Daylight Basement
Roof Framing
  • Trusses
Floor Load
  • Live (lbs):40 PSF
  • Dead (lbs):10 PSF
Roof Load
  • Live (lbs):25 PSF
  • Dead (lbs):15 PSF
  • Wind:85 MPH
Design Features
  • Bonus Space @ & Lower Floor
  • Den/Office
  • Rear Porch
  • Great Room
  • Laundry Room @ & Lower Floor
  • Master Bedroom @ Upper Floor Front
  • Craftsman House Plans
  • Northwest Floor Plans
  • Shingle House Plans
  • Narrow Lot House Plans
Front Rendering

Emery

M4411B3FT-0DB
  • Total Area:4427 Sq. Ft.
  • Stories:4
  • Bedrooms:4
  • Full Baths:3
Please enter the zip code of your building site, then select the Go! button to view pricing information for this house plan.

Recent View

© 2023 Architects Northwest All Rights Reserved Powered By: Visualwebz