Plan Pricing

$0

GLACIER RIDGE

M1450A0-0DB
  • Total Area:2538 Sq. Ft.
  • Garage Area:0 Sq Ft
  • Garage Size:No Garage
  • Stories:3
  • Bedrooms:3
  • Full Baths:2
  • Width:32'-0"
  • Depth:37'-0"
  • Height:23'-6"
  • Foundation:Basement
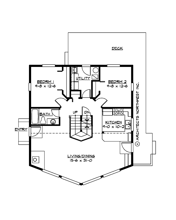
PLAN DETAILS FOR THE GLACIER RIDGE - PLAN M1450A0-0DB
Area Summary
  • Total Area:2538 Sq. Ft.
  • Main Floor:1088 Sq. Ft.
  • Upper Floor:362 Sq. Ft.
  • Lower Floor:1088 Sq. Ft.
General Information
  • Stories:3
  • Width:32'-0"
  • Depth:37'-0"
  • Height:23'-6"
Architectural Style
  • Alpine
  • Cottage
  • Mountain
Number of Rooms
  • Bedrooms:3
  • Full Baths:2
Garage
  • Garage Size:No Garage
Roof Pitches
  • Primary:9:12
Wall Heights
  • Main:8'-0"
  • Upper:8'-0"
  • Lower:9'-0"
Foundation Type
  • Cellar Basement
Roof Framing
  • Stick
Floor Load
  • Live (lbs):40 PSF
  • Dead (lbs):10 PSF
Roof Load
  • Live (lbs):25 PSF
  • Dead (lbs):15 PSF
  • Wind:85 MPH
Design Features
  • Bonus Space @ & Lower Floor
  • Great Room
  • Laundry Room @ Main Floor
  • Master Bedroom @ Upper Floor Rear
  • Alpine House Designs
  • Cottage House Plans
  • Mountain House Plans
  • Vacation House Plans
Rear Rendering

Glacier Peak

M1450A0-0
  • Total Area:1450 Sq. Ft.
  • Stories:2
  • Bedrooms:3
  • Full Baths:2
Please enter the zip code of your building site, then select the Go! button to view pricing information for this house plan.

Recent View

© 2023 Architects Northwest All Rights Reserved Powered By: Visualwebz