Plan Pricing

$0

ANDOVER PARK

M4952A3FA-0DB
  • Total Area:4952 Sq. Ft.
  • Garage Area:768 Sq Ft
  • Garage Size:3
  • Stories:3
  • Bedrooms:4
  • Full Baths:4
  • Half Baths:1
  • Width:95'-0"
  • Depth:75'-0"
  • Height:26'-0"
  • Foundation:Basement
PLAN DETAILS FOR THE ANDOVER PARK - PLAN M4952A3FA-0DB
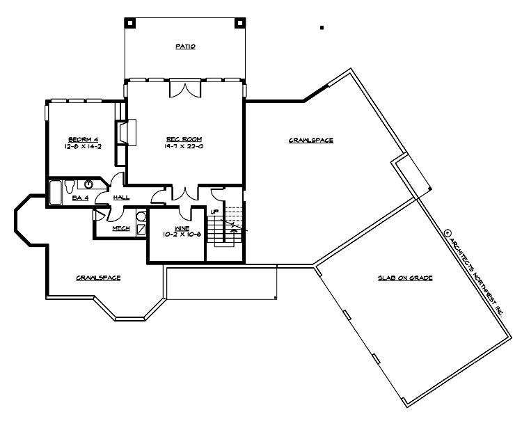
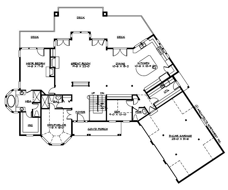
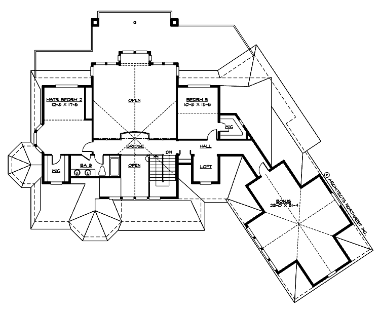
Area Summary
  • Total Area:4952 Sq. Ft.
  • Main Floor:2431 Sq. Ft.
  • Upper Floor:1455 Sq. Ft.
  • Lower Floor:1066 Sq. Ft.
  • Garage Floor:768 Sq. Ft.
General Information
  • Stories:3
  • Width:95'-0"
  • Depth:75'-0"
  • Height:26'-0"
Architectural Style
  • Hampton
  • Shingle
  • Traditional
Number of Rooms
  • Bedrooms:4
  • Full Baths:4
  • Half Baths:1
Garage
  • Garage Size:3
  • Garage Door Location:Front
  • Garage Type: Angled
Roof Pitches
  • Primary:10:12
  • Secondary:12:12
Wall Heights
  • Main:10'-0"
  • Upper:8'-0"
  • Lower:9'-0"
Foundation Type
  • Daylight Basement
Roof Framing
  • Stick
Floor Load
  • Live (lbs):40 PSF
  • Dead (lbs):10 PSF
Roof Load
  • Live (lbs):25 PSF
  • Dead (lbs):15 PSF
  • Wind:85 MPH
Design Features
  • Best Selling Plans
  • Bonus Space @ , Upper & Lower Floor
  • Den/Office
  • Front Porch
  • Great Room
  • Laundry Room @ Main Floor
  • Master Bedroom @ Main Floor Rear
  • Hampton House Plans
  • Shingle House Plans
  • Traditional House Plans
  • View Lot (Rear) Plans
Front Rendering

Andover

M4952A3FA-0
  • Total Area:3886 Sq. Ft.
  • Stories:2
  • Bedrooms:3
  • Full Baths:3
Please enter the zip code of your building site, then select the Go! button to view pricing information for this house plan.

Recent View

Front Rendering

Hidden Pond

M3180A3S-0
  • Total Area:3180 Sq. Ft.
  • Stories:2
  • Bedrooms:4
  • Full Baths:2
Front Rendering

Seaview

M2417A2FL-0
  • Total Area:2417 Sq. Ft.
  • Stories:3
  • Bedrooms:2
  • Full Baths:3
Rear Rendering

Glacier Ridge

M1450A0-0DB
  • Total Area:2538 Sq. Ft.
  • Stories:3
  • Bedrooms:3
  • Full Baths:2
© 2023 Architects Northwest All Rights Reserved Powered By: Visualwebz