Plan Pricing

$0

EAST HAMPTON

M4969A3S-0
  • Total Area:3781 Sq. Ft.
  • Garage Area:768 Sq Ft
  • Garage Size:3
  • Stories:2
  • Bedrooms:3
  • Full Baths:2
  • Half Baths:1
  • Width:65'-0"
  • Depth:60'-0"
  • Height:25'-6"
  • Foundation:Crawl Space
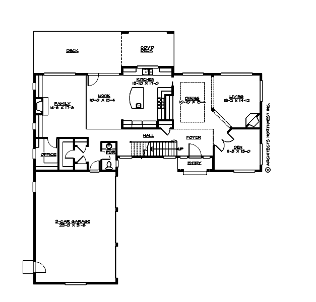
PLAN DETAILS FOR THE EAST HAMPTON - PLAN M4969A3S-0
Area Summary
  • Total Area:3781 Sq. Ft.
  • Main Floor:1742 Sq. Ft.
  • Upper Floor:2039 Sq. Ft.
  • Garage Floor:768 Sq. Ft.
General Information
  • Stories:2
  • Width:65'-0"
  • Depth:60'-0"
  • Height:25'-6"
Architectural Style
  • Craftsman
  • Hampton
  • Traditional
Number of Rooms
  • Bedrooms:3
  • Full Baths:2
  • Half Baths:1
Garage
  • Garage Size:3
  • Garage Door Location:Side
Roof Pitches
  • Primary:12:12
  • Secondary:4:12
Wall Heights
  • Main:10'-0"
  • Upper:8'-0"
Foundation Type
  • Crawl Space
Roof Framing
  • Stick
Floor Load
  • Live (lbs):40 PSF
  • Dead (lbs):10 PSF
Roof Load
  • Live (lbs):25 PSF
  • Dead (lbs):15 PSF
  • Wind:85 MPH
Design Features
  • Bonus Space @ & Upper Floor
  • Den/Office
  • Rear Porch
  • Great Room
  • Laundry Room @ & Upper Floor
  • Master Bedroom @ Upper Floor Rear
  • Craftsman House Plans
  • Hampton House Plans
  • Traditional House Plans
  • View Lot (Rear) Plans
Front Rendering

Eastchester

M4969A3S-0DB
  • Total Area:4969 Sq. Ft.
  • Stories:3
  • Bedrooms:5
  • Full Baths:3
Please enter the zip code of your building site, then select the Go! button to view pricing information for this house plan.

Recent View

© 2023 Architects Northwest All Rights Reserved Powered By: Visualwebz