Plan Pricing

$0

DENNY

M1511A2R-0
  • Total Area:1511 Sq. Ft.
  • Garage Area:400 Sq Ft
  • Garage Size:2
  • Stories:2
  • Bedrooms:3
  • Full Baths:2
  • Half Baths:1
  • Width:28'-0"
  • Depth:58'-0"
  • Height:24'-6"
  • Foundation:Crawl Space
PLAN DETAILS FOR THE DENNY - PLAN M1511A2R-0
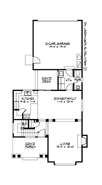
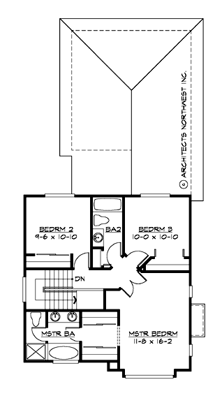
Area Summary
  • Total Area:1511 Sq. Ft.
  • Main Floor:764 Sq. Ft.
  • Upper Floor:747 Sq. Ft.
  • Garage Floor:400 Sq. Ft.
General Information
  • Stories:2
  • Width:28'-0"
  • Depth:58'-0"
  • Height:24'-6"
Architectural Style
  • Craftsman
  • Farmhouse
  • Northwest
Number of Rooms
  • Bedrooms:3
  • Full Baths:2
  • Half Baths:1
Garage
  • Garage Size:2
  • Garage Door Location:Rear
Roof Pitches
  • Primary:6:12
Wall Heights
  • Main:8'-0"
  • Upper:8'-0"
Foundation Type
  • Crawl Space
Roof Framing
  • Trusses
Floor Load
  • Live (lbs):40 PSF
  • Dead (lbs):10 PSF
Roof Load
  • Live (lbs):25 PSF
  • Dead (lbs):15 PSF
  • Wind:85 MPH
Design Features
  • Green Plans
  • Front Porch
  • Great Room
  • Laundry Room @ Main Floor
  • Master Bedroom @ Upper Floor Front
  • Craftsman House Plans
  • Farmhouse Home Plans
  • Northwest Floor Plans
  • Narrow Lot House Plans
Please enter the zip code of your building site, then select the Go! button to view pricing information for this house plan.

Recent View

Front Rendering

Dawson

M2386A2S-0
  • Total Area:2387 Sq. Ft.
  • Stories:2
  • Bedrooms:3
  • Full Baths:2
© 2023 Architects Northwest All Rights Reserved Powered By: Visualwebz