Plan Pricing

$0

BRIDGEPORT

R4372A3F-0DB
  • Total Area:4372 Sq. Ft.
  • Garage Area:817 Sq Ft
  • Garage Size:3
  • Stories:2
  • Bedrooms:4
  • Full Baths:3
  • Half Baths:1
  • Width:101'-0"
  • Depth:59'-0"
  • Height:28'-0"
  • Foundation:Basement
PLAN DETAILS FOR THE BRIDGEPORT - PLAN R4372A3F-0DB
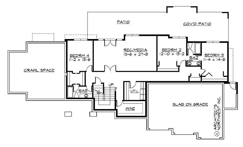
Area Summary
  • Total Area:4372 Sq. Ft.
  • Main Floor:2448 Sq. Ft.
  • Lower Floor:1924 Sq. Ft.
  • Garage Floor:817 Sq. Ft.
General Information
  • Stories:2
  • Width:101'-0"
  • Depth:59'-0"
  • Height:28'-0"
Architectural Style
  • Craftsman
  • Hampton
  • Traditional
Number of Rooms
  • Bedrooms:4
  • Full Baths:3
  • Half Baths:1
Garage
  • Garage Size:3
  • Garage Door Location:Front
Roof Pitches
  • Primary:10:12
Wall Heights
  • Main:12'-0"
  • Lower:10'-0"
Foundation Type
  • Daylight Basement
Roof Framing
  • Trusses
Floor Load
  • Live (lbs):40 PSF
  • Dead (lbs):10 PSF
Roof Load
  • Live (lbs):25 PSF
  • Dead (lbs):15 PSF
  • Wind:85 MPH
Design Features
  • Bonus Space @ & Lower Floor
  • Den/Office
  • Great Room
  • Laundry Room @ & Lower Floor
  • Master Bedroom @ Main Floor Rear
  • Craftsman House Plans
  • Hampton House Plans
  • Traditional House Plans
  • Luxury Home Designs
Please enter the zip code of your building site, then select the Go! button to view pricing information for this house plan.

Recent View

Front Rendering

McQuade

R4466A3SE-0DB
  • Total Area:4466 Sq. Ft.
  • Stories:2
  • Bedrooms:4
  • Full Baths:4
© 2023 Architects Northwest All Rights Reserved Powered By: Visualwebz