Plan Pricing

$0

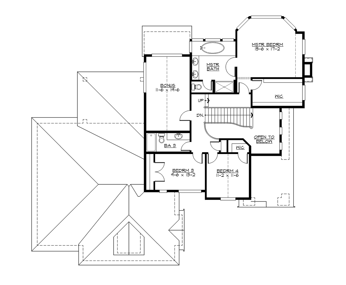
CANTERBURY

M3100A3F-0
  • Total Area:3100 Sq. Ft.
  • Garage Area:975 Sq Ft
  • Garage Size:3
  • Stories:2
  • Bedrooms:4
  • Full Baths:3
  • Width:76'-0"
  • Depth:64'-0"
  • Height:31'-0"
  • Foundation:Crawl Space
PLAN DETAILS FOR THE CANTERBURY - PLAN M3100A3F-0
Area Summary
  • Total Area:3100 Sq. Ft.
  • Main Floor:1760 Sq. Ft.
  • Upper Floor:1340 Sq. Ft.
  • Garage Floor:975 Sq. Ft.
General Information
  • Stories:2
  • Width:76'-0"
  • Depth:64'-0"
  • Height:31'-0"
Architectural Style
  • Chateau
  • European
  • Traditional
Number of Rooms
  • Bedrooms:4
  • Full Baths:3
Garage
  • Garage Size:3
  • Garage Door Location:Front
Roof Pitches
  • Primary:10:12
  • Secondary:8:12
Wall Heights
  • Main:9'-0"
  • Upper:9'-0"
Foundation Type
  • Crawl Space
Roof Framing
  • Trusses
Floor Load
  • Live (lbs):40 PSF
  • Dead (lbs):10 PSF
Roof Load
  • Live (lbs):25 PSF
  • Dead (lbs):15 PSF
  • Wind:85 MPH
Design Features
  • Bonus Space @ & Upper Floor
  • Den/Office
  • Great Room
  • Laundry Room @ Main Floor
  • Master Bedroom @ Upper Floor Rear
  • Chateau House Plans
  • European House Plans
  • Traditional House Plans
  • View Lot (Rear) Plans
  • Wide Lot House Plans
Please enter the zip code of your building site, then select the Go! button to view pricing information for this house plan.

Recent View

© 2023 Architects Northwest All Rights Reserved Powered By: Visualwebz