Plan Pricing

$0

SAGEHOLLOW

R3815A3S-0
  • Total Area:3815 Sq. Ft.
  • Garage Area:960 Sq Ft
  • Garage Size:3
  • Stories:1
  • Bedrooms:5
  • Full Baths:3
  • Half Baths:1
  • Width:104'-0"
  • Depth:52'-6"
  • Height:24'-0"
  • Foundation:Crawl Space
PLAN DETAILS FOR THE SAGEHOLLOW - PLAN R3815A3S-0
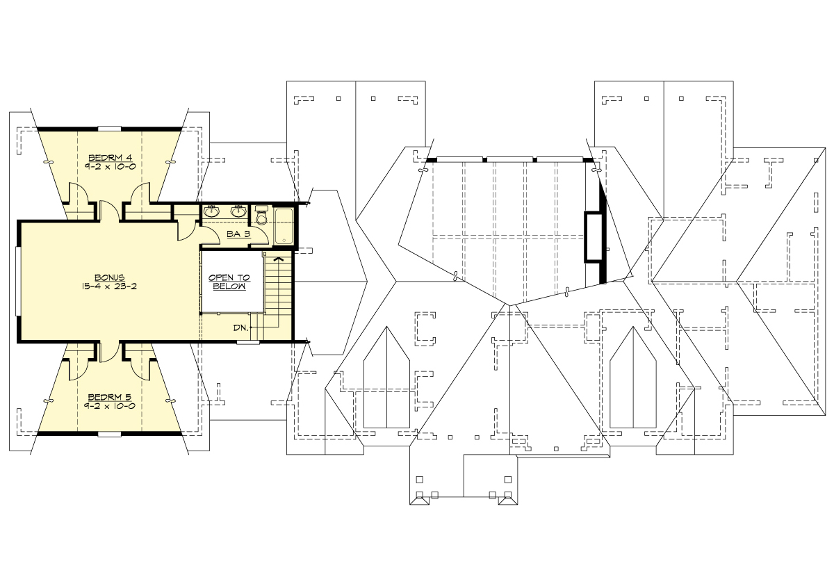
Area Summary
  • Total Area:3815 Sq. Ft.
  • Main Floor:3035 Sq. Ft.
  • Upper Floor:780 Sq. Ft.
  • Garage Floor:960 Sq. Ft.
General Information
  • Stories:1
  • Width:104'-0"
  • Depth:52'-6"
  • Height:24'-0"
Architectural Style
  • Cottage
  • Shingle
  • Traditional
Number of Rooms
  • Bedrooms:5
  • Full Baths:3
  • Half Baths:1
Garage
  • Garage Size:3
  • Garage Door Location:Side
Roof Pitches
  • Primary:12:12
  • Secondary:8:12
Wall Heights
  • Main:10'-0"
  • Upper:8'-0"
Foundation Type
  • Crawl Space
Roof Framing
  • Combination
Floor Load
  • Live (lbs):40 PSF
  • Dead (lbs):10 PSF
Roof Load
  • Live (lbs):25 PSF
  • Dead (lbs):15 PSF
  • Wind:85 MPH
Design Features
  • Bonus Space @ & Upper Floor
  • Den/Office
  • Great Room
  • Laundry Room @ Main Floor
  • Master Bedroom @ Main Floor Rear
  • Cottage House Plans
  • Shingle House Plans
  • Traditional House Plans
  • View Lot (Rear) Plans
  • Wide Lot House Plans
Front Photo

La Conner

R2930A3S-0
  • Total Area:2930 Sq. Ft.
  • Stories:2
  • Bedrooms:4
  • Full Baths:3
Please enter the zip code of your building site, then select the Go! button to view pricing information for this house plan.

Recent View

Front Rendering

Mona

M1986B1F-0R
  • Total Area:1986 Sq. Ft.
  • Stories:3
  • Bedrooms:4
  • Full Baths:3
Front Rendering

Coriliss

M1675A2R-0
  • Total Area:1675 Sq. Ft.
  • Stories:2
  • Bedrooms:4
  • Full Baths:2
© 2023 Architects Northwest All Rights Reserved Powered By: Visualwebz