Plan Pricing

$0

MCCLELLAN

M1622B2R-0
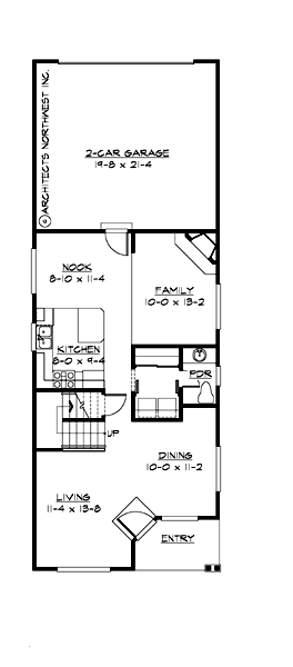
  • Total Area:1622 Sq. Ft.
  • Garage Area:444 Sq Ft
  • Garage Size:2
  • Stories:2
  • Bedrooms:4
  • Full Baths:2
  • Half Baths:1
  • Width:22'-0"
  • Depth:60'-0"
  • Height:23'-0"
  • Foundation:Crawl Space
PLAN DETAILS FOR THE MCCLELLAN - PLAN M1622B2R-0
Area Summary
  • Total Area:1622 Sq. Ft.
  • Main Floor:820 Sq. Ft.
  • Upper Floor:802 Sq. Ft.
  • Garage Floor:444 Sq. Ft.
General Information
  • Stories:2
  • Width:22'-0"
  • Depth:60'-0"
  • Height:23'-0"
Architectural Style
  • Craftsman
  • Northwest
  • Shotgun
Number of Rooms
  • Bedrooms:4
  • Full Baths:2
  • Half Baths:1
Garage
  • Garage Size:2
  • Garage Door Location:Rear
Roof Pitches
  • Primary:6:12
Wall Heights
  • Main:8'-0"
  • Upper:8'-0"
Foundation Type
  • Crawl Space
Roof Framing
  • Trusses
Floor Load
  • Live (lbs):40 PSF
  • Dead (lbs):10 PSF
Roof Load
  • Live (lbs):25 PSF
  • Dead (lbs):15 PSF
  • Wind:85 MPH
Design Features
  • Great Room
  • Laundry Room @ Main Floor
  • Master Bedroom @ Upper Floor Front
  • Craftsman House Plans
  • Northwest Floor Plans
  • Shotgun Floor Plans
  • Narrow Lot House Plans
Please enter the zip code of your building site, then select the Go! button to view pricing information for this house plan.

Recent View

Front Photo

Mackey

M3312A2F-0
  • Total Area:3403 Sq. Ft.
  • Stories:2
  • Bedrooms:3
  • Full Baths:3
© 2023 Architects Northwest All Rights Reserved Powered By: Visualwebz