Plan Pricing

$0

WATERCREST

M2551A3F-0DB
  • Total Area:3771 Sq. Ft.
  • Garage Area:805 Sq Ft
  • Garage Size:3
  • Stories:3
  • Bedrooms:5
  • Full Baths:3
  • Half Baths:1
  • Width:74'-0"
  • Depth:58'-0"
  • Height:25'-0"
  • Foundation:Basement
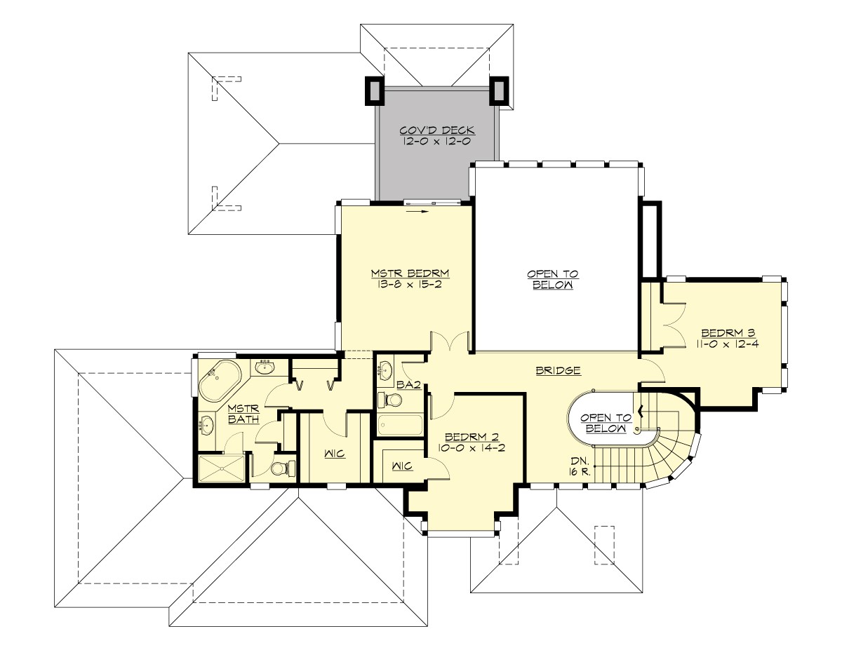
PLAN DETAILS FOR THE WATERCREST - PLAN M2551A3F-0DB
Area Summary
  • Total Area:3771 Sq. Ft.
  • Main Floor:1467 Sq. Ft.
  • Upper Floor:1084 Sq. Ft.
  • Lower Floor:1220 Sq. Ft.
  • Garage Floor:805 Sq. Ft.
General Information
  • Stories:3
  • Width:74'-0"
  • Depth:58'-0"
  • Height:25'-0"
Architectural Style
  • Contemporary
  • Modern
  • Prarie
Number of Rooms
  • Bedrooms:5
  • Full Baths:3
  • Half Baths:1
Garage
  • Garage Size:3
  • Garage Door Location:Front
Roof Pitches
  • Primary:4:12
Wall Heights
  • Main:9'-0"
  • Upper:9'-0"
  • Lower:9'-0"
Foundation Type
  • Daylight Basement
Roof Framing
  • Trusses
Floor Load
  • Live (lbs):40 PSF
  • Dead (lbs):10 PSF
Roof Load
  • Live (lbs):25 PSF
  • Dead (lbs):15 PSF
  • Wind:85 MPH
Design Features
  • Best Selling Plans
  • Bonus Space @ & Lower Floor
  • Den/Office
  • Rear Porch
  • Great Room
  • Laundry Room @ Main Floor
  • Master Bedroom @ Upper Floor Rear
  • Contemporary Home Plans
  • Modern Home Plans
  • Prairie Home Plans
  • View Lot (Rear) Plans
  • Wide Lot House Plans
Front Exterior

Prairieville

M4750A2F2FD-0
  • Total Area:4750 Sq. Ft.
  • Stories:2
  • Bedrooms:4
  • Full Baths:4
Front Rendering

Prairiedale

M4750A2F2FD-1
  • Total Area:3664 Sq. Ft.
  • Stories:2
  • Bedrooms:3
  • Full Baths:3
Front Rendering

Prairievale

M4750A2F2FD-1DB
  • Total Area:5824 Sq. Ft.
  • Stories:3
  • Bedrooms:3
  • Full Baths:3
Front Photo

Waterbrook

M2551A3F-0
  • Total Area:2551 Sq. Ft.
  • Stories:2
  • Bedrooms:3
  • Full Baths:2
Front Photo

Prairietown

M4555A2F1S-0
  • Total Area:4555 Sq. Ft.
  • Stories:2
  • Bedrooms:4
  • Full Baths:4
Please enter the zip code of your building site, then select the Go! button to view pricing information for this house plan.

Recent View

© 2023 Architects Northwest All Rights Reserved Powered By: Visualwebz