Plan Pricing

$0

CALLISTO CAPE

M3175A3FT-0
  • Total Area:3205 Sq. Ft.
  • Garage Area:616 Sq Ft
  • Garage Size:3
  • Stories:2
  • Bedrooms:4
  • Full Baths:2
  • Half Baths:1
  • Width:60'-0"
  • Depth:45'-0"
  • Height:27'-0"
  • Foundation:Crawl Space
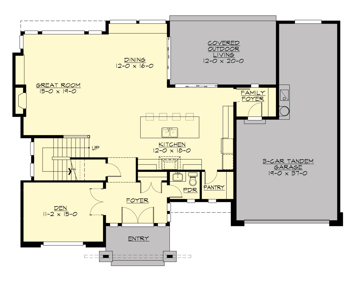
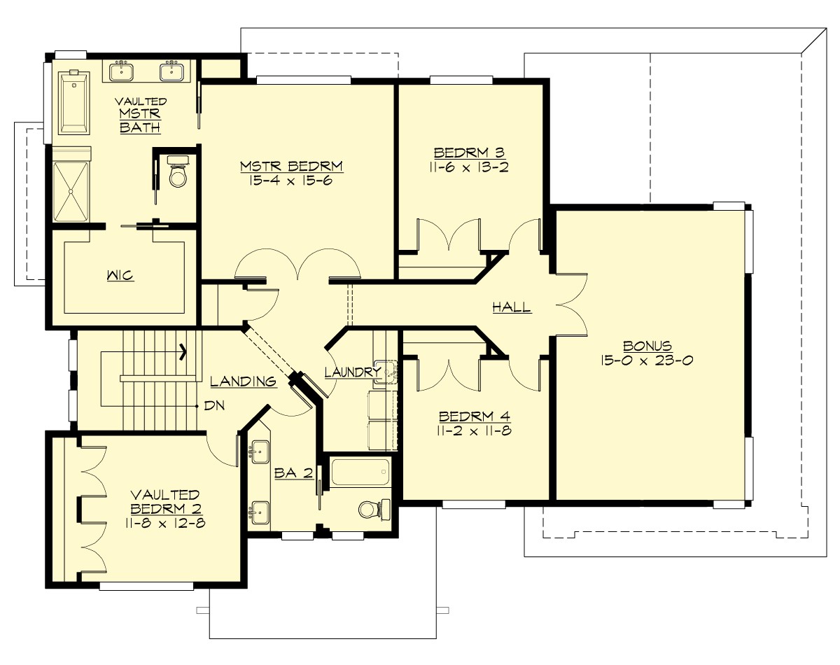
PLAN DETAILS FOR THE CALLISTO CAPE - PLAN M3175A3FT-0
Area Summary
  • Total Area:3205 Sq. Ft.
  • Main Floor:1398 Sq. Ft.
  • Upper Floor:1807 Sq. Ft.
  • Garage Floor:616 Sq. Ft.
General Information
  • Stories:2
  • Width:60'-0"
  • Depth:45'-0"
  • Height:27'-0"
Architectural Style
  • Contemporary
  • Modern
  • Northwest
Number of Rooms
  • Bedrooms:4
  • Full Baths:2
  • Half Baths:1
Garage
  • Garage Size:3
  • Garage Door Location:Front
  • Garage Type: Tandem
Roof Pitches
  • Primary:3:12
  • Secondary:5:12
Wall Heights
  • Main:9'-0"
  • Upper:8'-0"
Foundation Type
  • Crawl Space
Roof Framing
  • Combination
Floor Load
  • Live (lbs):40 PSF
  • Dead (lbs):10 PSF
Roof Load
  • Live (lbs):25 PSF
  • Dead (lbs):15 PSF
  • Wind:85 MPH
Design Features
  • Bonus Space @ & Upper Floor
  • Den/Office
  • Rear Porch
  • Great Room
  • Laundry Room @ & Upper Floor
  • Master Bedroom @ Upper Floor Rear
  • Contemporary Home Plans
  • Modern Home Plans
  • Northwest Floor Plans
  • View Lot (Rear) Plans
  • Wide Lot House Plans
Front Rendering

Callisto

M3175A2F-0
  • Total Area:3167 Sq. Ft.
  • Stories:2
  • Bedrooms:4
  • Full Baths:2
Please enter the zip code of your building site, then select the Go! button to view pricing information for this house plan.

Recent View

© 2023 Architects Northwest All Rights Reserved Powered By: Visualwebz