Granville
M5074A3FU-0DB
Total Area:
5091 sq. ft.

Garage Area:
764 sq. ft.

Garage Size:
3

Stories:
3

Bedrooms:
5

Full Baths:
4

Half Baths:
1

Width:
50'-0"

Depth:
68'-0"

Height
information button image
:
28'-0"

Foundation:
Daylight Basement


Granville - Plan M5074A3FU-0DB
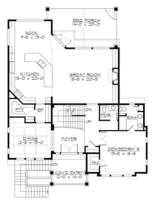
Front Entry
Rear Photo
Covered Entry
Foyer
Den & Bedroom 5
Dining
Butler Pantry
Kitchen
Kitchen
Kitchen
Kitchen
Nook
Great Room
Great Room
BBQ Porch
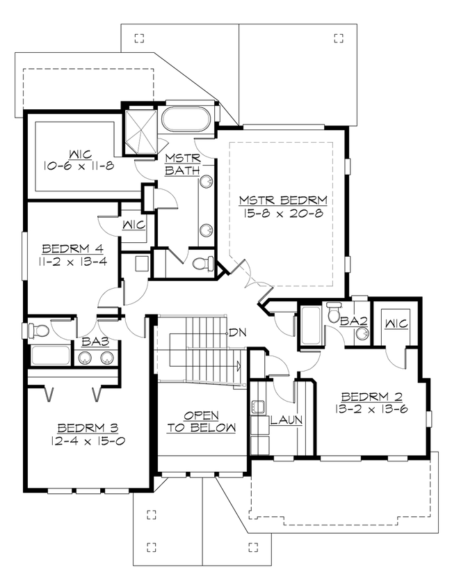
Stairs
Master Bedroom
Master Bath
Bedroom 2
Bath 3
Bath 4
Rec Room
Front Elevation
Left Elevation
Rear Elevation
Right Elevation
Pay Pal Image
All images are © copyrighted by Architects Northwest. Photographs, if shown, may have been modified to homeowner's preferences or site conditions.
MAIN FLOOR
Main Floor Plan
MAIN FLOOR
UPPER FLOOR
Upper Floor Plan
UPPER FLOOR
LOWER FLOOR
Lower Floor Plan
LOWER FLOOR
PLAN DETAILS FOR THE Granville - Plan M5074A3FU-0DB
Area Summary
Total Area:
5091 sq. ft.
Main Floor:
2065 sq. ft.
Upper Floor:
1733 sq. ft.
Lower Floor:
1253 sq. ft.
Garage Floor:
764 sq. ft.
Architectural Style
Craftsman
Shingle
Traditional
Garage
Garage Size:
3
Garage Door Location:
Front
Garage Type:
Under
Foundation Type
Daylight Basement

Roof Framing
Combination
General Information
Stories:
3
Width:
50'-0"
Depth:
68'-0"
Height
information button image
:
28'-0"
Number of Rooms
Bedrooms:
5
Full Baths:
4
Half Baths:
1
Roof Pitches
Primary:
6:12
Secondary:
4:12
Floor Load
Live (lbs):
40 PSF
Dead (lbs):
10 PSF
 
Wall Heights
Main:
10'-0"
Upper:
9'-0"
3rd Floor:
0'-0"
Lower:
10'-0"
Roof Load
Live (lbs):
25 PSF
Dead (lbs):
15 PSF
Wind:
85 MPH
Design Features
  • Bonus Space @ Lower Floor
  • Front and Rear Porch
  • Great Room
  • Laundry Room @ Upper Floor
  • Master Bedroom @ Upper Floor Rear
  • Narrow Lot
  • View Lot - Rear
PLAN PRICING FOR THE Granville - Plan M5074A3FU-0DB
Please enter the zip code of your building site, then select the Go! button to view pricing information for this house plan.
Find a Plan
Advanced Search
Popular Search
Architectural Styles
House Plan Collections
New Plans
Plans Coming Soon
About Plans
Building Codes
Copyright Information
Plan Modifications
Plan Packages
Plan Package Contents
Design Services
Custom Home Designs
Multi Family Designs
Neighborhood Designs
Marketing Products
Plan Books
Realtor Products
Video Gallery
Photo Gallery
Building Resources
Builder Directory
Building Products
Engineers & Surveyors
Professional Associations
Click to go to the Maytag web site Click to go to the Gutterglove USA web site Click to go to the Jenn Air web site Click to go to the Whirlpool web site Click to go to the fireplace extroedinair web site Click to go to the NanaWall web site Click to go to the Velux USA web site Click to go to the Gladiator Garage Works web site GeoTrust National Association of Home Builders House Plan Marketing Association Built Green Visa MasterCard American Express