Plan Pricing

$0

CATANIA

M2204A1S-0
  • Total Area:2204 Sq. Ft.
  • Garage Area:338 Sq Ft
  • Garage Size:1
  • Stories:2
  • Bedrooms:2
  • Full Baths:2
  • Half Baths:1
  • Width:40'-0"
  • Depth:57'-0"
  • Height:24'-0"
  • Foundation:Crawl Space
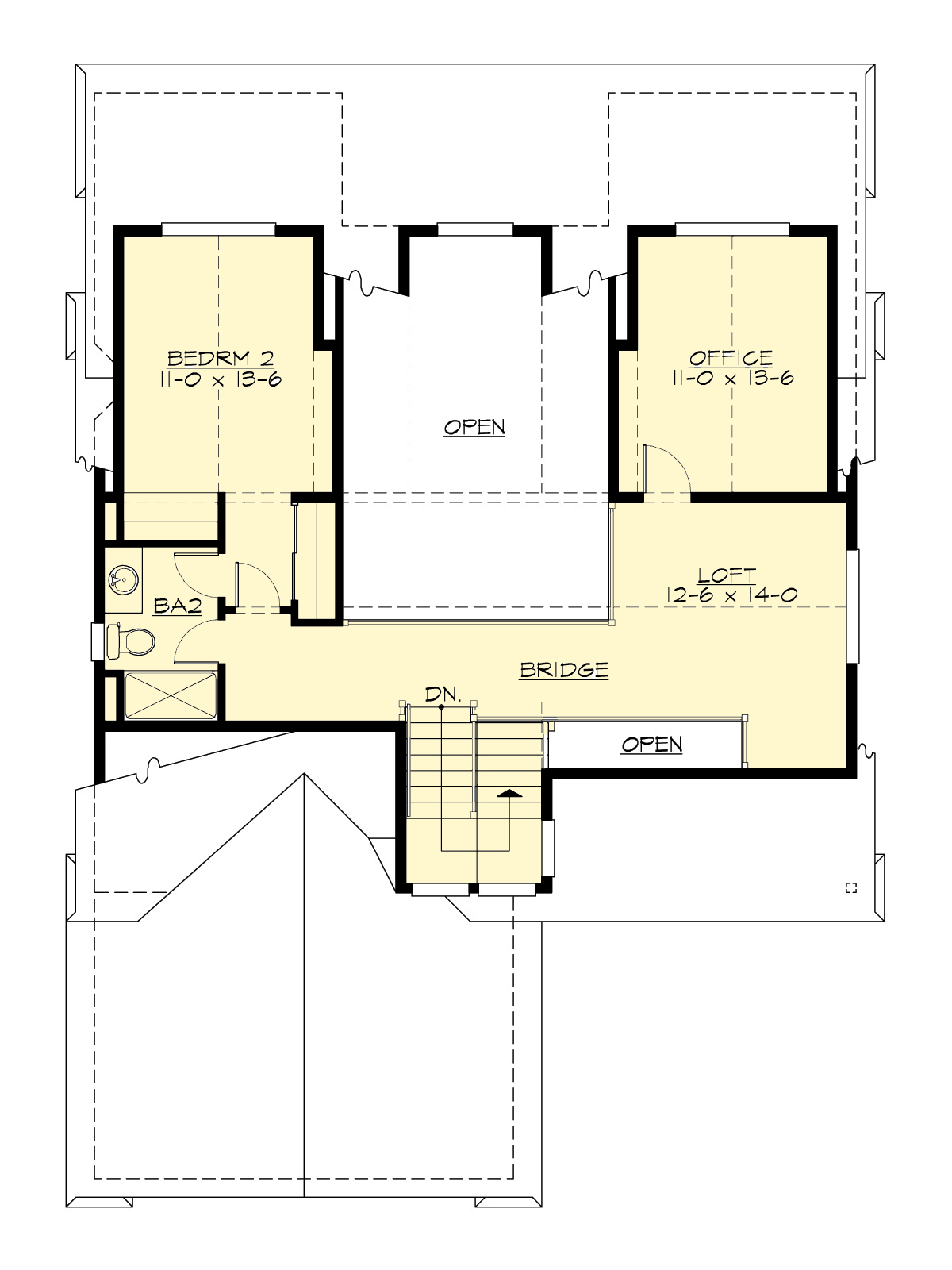
PLAN DETAILS FOR THE CATANIA - PLAN M2204A1S-0
Area Summary
  • Total Area:2204 Sq. Ft.
  • Main Floor:1474 Sq. Ft.
  • Upper Floor:730 Sq. Ft.
  • Garage Floor:338 Sq. Ft.
General Information
  • Stories:2
  • Width:40'-0"
  • Depth:57'-0"
  • Height:24'-0"
Architectural Style
  • Craftsman
  • Northwest
  • Shingle
Number of Rooms
  • Bedrooms:2
  • Full Baths:2
  • Half Baths:1
Garage
  • Garage Size:1
  • Garage Door Location:Side
Roof Pitches
  • Primary:8:12
  • Secondary:9:12
Wall Heights
  • Main:9'-0"
  • Upper:8'-0"
Foundation Type
  • Crawl Space
Roof Framing
  • Trusses
Floor Load
  • Live (lbs):40 PSF
  • Dead (lbs):10 PSF
Roof Load
  • Live (lbs):25 PSF
  • Dead (lbs):15 PSF
  • Wind:85 MPH
Design Features
  • Den/Office
  • Front and Rear Porch
  • Great Room
  • Laundry Room @ Main Floor
  • Master Bedroom @ Main Floor Rear
  • Craftsman House Plans
  • Northwest Floor Plans
  • Shingle House Plans
  • Vacation House Plans
  • View Lot (Rear) Plans
Please enter the zip code of your building site, then select the Go! button to view pricing information for this house plan.

Recent View

Front Rendering

Starfaire

M3205C2FU-0DB
  • Total Area:3625 Sq. Ft.
  • Stories:3
  • Bedrooms:4
  • Full Baths:4
© 2023 Architects Northwest All Rights Reserved Powered By: Visualwebz