Plan Pricing

$0

GRANGEVILLE

M1784A2F-0
  • Total Area:1784 Sq. Ft.
  • Garage Area:436 Sq Ft
  • Garage Size:2
  • Stories:2
  • Bedrooms:3
  • Full Baths:2
  • Half Baths:1
  • Width:36'-0"
  • Depth:38'-0"
  • Height:27'-0"
  • Foundation:Crawl Space
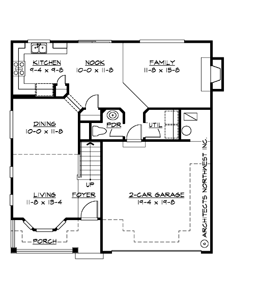
PLAN DETAILS FOR THE GRANGEVILLE - PLAN M1784A2F-0
Area Summary
  • Total Area:1784 Sq. Ft.
  • Main Floor:848 Sq. Ft.
  • Upper Floor:936 Sq. Ft.
  • Garage Floor:436 Sq. Ft.
General Information
  • Stories:2
  • Width:36'-0"
  • Depth:38'-0"
  • Height:27'-0"
Architectural Style
  • Craftsman
  • Farmhouse
Number of Rooms
  • Bedrooms:3
  • Full Baths:2
  • Half Baths:1
Garage
  • Garage Size:2
  • Garage Door Location:Front
Roof Pitches
  • Primary:7:12
  • Secondary:6:12
Wall Heights
  • Main:8'-0"
  • Upper:8'-0"
Foundation Type
  • Crawl Space
Roof Framing
  • Trusses
Floor Load
  • Live (lbs):40 PSF
  • Dead (lbs):10 PSF
Roof Load
  • Live (lbs):25 PSF
  • Dead (lbs):15 PSF
  • Wind:85 MPH
Design Features
  • Front Porch
  • Great Room
  • Laundry Room @ Main Floor
  • Master Bedroom @ Upper Floor Front
  • Craftsman House Plans
  • Farmhouse Home Plans
  • Narrow Lot House Plans
  • Small House Plans
Front Rendering

Cottonwood

M1784B2F-0
  • Total Area:1840 Sq. Ft.
  • Stories:2
  • Bedrooms:3
  • Full Baths:2
Please enter the zip code of your building site, then select the Go! button to view pricing information for this house plan.

Recent View

© 2023 Architects Northwest All Rights Reserved Powered By: Visualwebz