Plan Pricing

$0

MILTON

M2960A3FT-0
  • Total Area:2960 Sq. Ft.
  • Garage Area:625 Sq Ft
  • Garage Size:3
  • Stories:2
  • Bedrooms:4
  • Full Baths:2
  • Half Baths:1
  • Width:40'-0"
  • Depth:54'-0"
  • Height:31'-0"
  • Foundation:Crawl Space
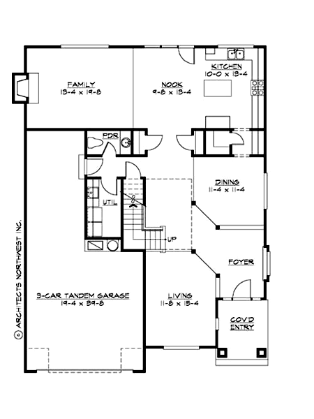
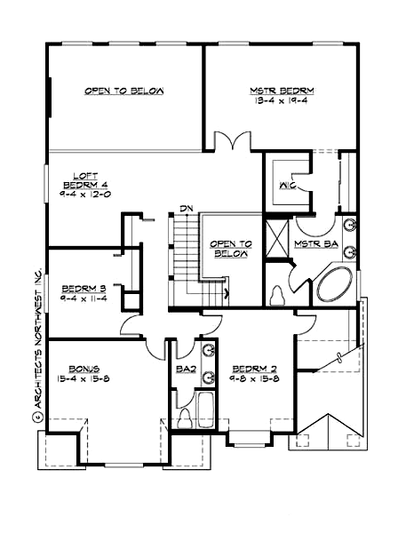
PLAN DETAILS FOR THE MILTON - PLAN M2960A3FT-0
Area Summary
  • Total Area:2960 Sq. Ft.
  • Main Floor:1404 Sq. Ft.
  • Upper Floor:1556 Sq. Ft.
  • Garage Floor:625 Sq. Ft.
General Information
  • Stories:2
  • Width:40'-0"
  • Depth:54'-0"
  • Height:31'-0"
Architectural Style
  • Hampton
  • Shingle
  • Traditional
Number of Rooms
  • Bedrooms:4
  • Full Baths:2
  • Half Baths:1
Garage
  • Garage Size:3
  • Garage Door Location:Front
  • Garage Type: Tandem
Roof Pitches
  • Primary:8:12
  • Secondary:12:12
Wall Heights
  • Main:9'-0"
  • Upper:8'-0"
Foundation Type
  • Crawl Space
Roof Framing
  • Trusses
Floor Load
  • Live (lbs):40 PSF
  • Dead (lbs):10 PSF
Roof Load
  • Live (lbs):25 PSF
  • Dead (lbs):15 PSF
  • Wind:85 MPH
Design Features
  • Bonus Space @ & Upper Floor
  • Great Room
  • Laundry Room @ Main Floor
  • Master Bedroom @ Upper Floor Rear
  • Hampton House Plans
  • Shingle House Plans
  • Traditional House Plans
  • Narrow Lot House Plans
  • Small House Plans
Front Rendering

Milton Lane

M2960A3FT-0DB
  • Total Area:4106 Sq. Ft.
  • Stories:3
  • Bedrooms:4
  • Full Baths:3
Front Photo

Selway

M3050A4FT-0
  • Total Area:3050 Sq. Ft.
  • Stories:2
  • Bedrooms:4
  • Full Baths:2
Front Exterior

Selway River

M3050B3FT-0
  • Total Area:3151 Sq. Ft.
  • Stories:2
  • Bedrooms:4
  • Full Baths:2
Please enter the zip code of your building site, then select the Go! button to view pricing information for this house plan.

Recent View

Front Photo

Selway

M3050A4FT-0
  • Total Area:3050 Sq. Ft.
  • Stories:2
  • Bedrooms:4
  • Full Baths:2
Front Photo

Fairfield

M4052A2SU-0DB
  • Total Area:4052 Sq. Ft.
  • Stories:3
  • Bedrooms:5
  • Full Baths:4
© 2023 Architects Northwest All Rights Reserved Powered By: Visualwebz