Plan Pricing

$0

SELWAY RIVER

M3050B3FT-0
  • Total Area:3151 Sq. Ft.
  • Garage Area:617 Sq Ft
  • Garage Size:3
  • Stories:2
  • Bedrooms:4
  • Full Baths:2
  • Half Baths:1
  • Width:44'-0"
  • Depth:53'-0"
  • Height:30'-0"
  • Foundation:Crawl Space
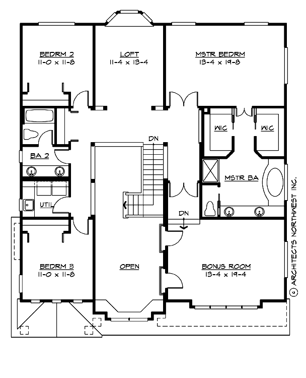
PLAN DETAILS FOR THE SELWAY RIVER - PLAN M3050B3FT-0
Area Summary
  • Total Area:3151 Sq. Ft.
  • Main Floor:1415 Sq. Ft.
  • Upper Floor:1736 Sq. Ft.
  • Garage Floor:617 Sq. Ft.
General Information
  • Stories:2
  • Width:44'-0"
  • Depth:53'-0"
  • Height:30'-0"
Architectural Style
  • Craftsman
  • Northwest
  • Traditional
Number of Rooms
  • Bedrooms:4
  • Full Baths:2
  • Half Baths:1
Garage
  • Garage Size:3
  • Garage Door Location:Front
  • Garage Type: Tandem
Roof Pitches
  • Primary:8:12
  • Secondary:6:12
Wall Heights
  • Main:9'-0"
  • Upper:8'-0"
Foundation Type
  • Crawl Space
Roof Framing
  • Trusses
Floor Load
  • Live (lbs):40 PSF
  • Dead (lbs):10 PSF
Roof Load
  • Live (lbs):25 PSF
  • Dead (lbs):15 PSF
  • Wind:85 MPH
Design Features
  • Bonus Space @ & Upper Floor
  • Den/Office
  • Great Room
  • Laundry Room @ & Upper Floor
  • Master Bedroom @ Upper Floor Rear
  • Craftsman House Plans
  • Northwest Floor Plans
  • Traditional House Plans
  • Narrow Lot House Plans
  • View Lot (Rear) Plans
Front Photo

Milton

M2960A3FT-0
  • Total Area:2960 Sq. Ft.
  • Stories:2
  • Bedrooms:4
  • Full Baths:2
Front Rendering

Milton Lane

M2960A3FT-0DB
  • Total Area:4106 Sq. Ft.
  • Stories:3
  • Bedrooms:4
  • Full Baths:3
Front Photo

Selway

M3050A4FT-0
  • Total Area:3050 Sq. Ft.
  • Stories:2
  • Bedrooms:4
  • Full Baths:2
Please enter the zip code of your building site, then select the Go! button to view pricing information for this house plan.

Recent View

© 2023 Architects Northwest All Rights Reserved Powered By: Visualwebz