Plan Pricing

$0

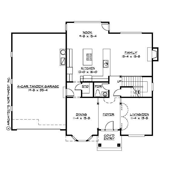
LAURELHURST

M2980A4FT-0
  • Total Area:2980 Sq. Ft.
  • Garage Area:720 Sq Ft
  • Garage Size:4
  • Stories:2
  • Bedrooms:4
  • Full Baths:2
  • Half Baths:1
  • Width:52'-0"
  • Depth:46'-0"
  • Height:30'-0"
  • Foundation:Crawl Space
PLAN DETAILS FOR THE LAURELHURST - PLAN M2980A4FT-0
Area Summary
  • Total Area:2980 Sq. Ft.
  • Main Floor:1705 Sq. Ft.
  • Garage Floor:720 Sq. Ft.
General Information
  • Stories:2
  • Width:52'-0"
  • Depth:46'-0"
  • Height:30'-0"
Architectural Style
  • Hampton
  • Shingle
  • Traditional
Number of Rooms
  • Bedrooms:4
  • Full Baths:2
  • Half Baths:1
Garage
  • Garage Size:4
  • Garage Door Location:Front
  • Garage Type: Tandem
Roof Pitches
  • Primary:8:12
Wall Heights
  • Main:9'-0"
  • Upper:8'-0"
Foundation Type
  • Crawl Space
Roof Framing
  • Trusses
Floor Load
  • Live (lbs):40 PSF
  • Dead (lbs):10 PSF
Roof Load
  • Live (lbs):25 PSF
  • Dead (lbs):15 PSF
  • Wind:85 MPH
Design Features
  • Bonus Space @ & Upper Floor
  • Great Room
  • Laundry Room @ & Upper Floor
  • Master Bedroom @ Upper Floor Rear
  • Hampton House Plans
  • Shingle House Plans
  • Traditional House Plans
  • Small House Plans
  • View Lot (Rear) Plans
Front Rendering

Laurelcrest

M2980A3S-1
  • Total Area:3009 Sq. Ft.
  • Stories:2
  • Bedrooms:4
  • Full Baths:2
Front Rendering

Heritage Garden

M2980B4FT-0
  • Total Area:2980 Sq. Ft.
  • Stories:2
  • Bedrooms:4
  • Full Baths:2
Front Photo

Covington

M2980C4FT-0
  • Total Area:2980 Sq. Ft.
  • Stories:2
  • Bedrooms:4
  • Full Baths:2
Front Photo

Preston

M2980D4FT-0
  • Total Area:2970 Sq. Ft.
  • Stories:2
  • Bedrooms:4
  • Full Baths:2
Front Rendering

Kalispell

M3305A4FT-0
  • Total Area:3305 Sq. Ft.
  • Stories:2
  • Bedrooms:4
  • Full Baths:2
Front Photo

Sugarloaf

M3305B4FT-0
  • Total Area:3278 Sq. Ft.
  • Stories:2
  • Bedrooms:4
  • Full Baths:2
Front Photo

Mapleton

M3705A3F-0
  • Total Area:3705 Sq. Ft.
  • Stories:2
  • Bedrooms:4
  • Full Baths:3
Front Photo

Mapleton Valley

M3705A3F-1
  • Total Area:3635 Sq. Ft.
  • Stories:2
  • Bedrooms:4
  • Full Baths:3
Please enter the zip code of your building site, then select the Go! button to view pricing information for this house plan.

Recent View

Front Photo

Preston

M2980D4FT-0
  • Total Area:2970 Sq. Ft.
  • Stories:2
  • Bedrooms:4
  • Full Baths:2
Front Rendering

Bennett Park

M3049B3F-0
  • Total Area:3049 Sq. Ft.
  • Stories:2
  • Bedrooms:4
  • Full Baths:2
Front Rendering

Milltown

M2940A3FT-10
  • Total Area:3115 Sq. Ft.
  • Stories:2
  • Bedrooms:4
  • Full Baths:3
Front Photo

Madrona

M3575A3F-0
  • Total Area:3575 Sq. Ft.
  • Stories:2
  • Bedrooms:4
  • Full Baths:2
Front Exterior

Trillium

M3280A3F-0
  • Total Area:3280 Sq. Ft.
  • Stories:2
  • Bedrooms:4
  • Full Baths:2
Front Rendering

Harbor Pointe

M2645A3F-0
  • Total Area:2810 Sq. Ft.
  • Stories:2
  • Bedrooms:4
  • Full Baths:2
Front Photo

Kalispell Crest

M3305A2F-7DB
  • Total Area:4294 Sq. Ft.
  • Stories:3
  • Bedrooms:5
  • Full Baths:3
Front Rendering

Jordan

M2981A2F-0
  • Total Area:2981 Sq. Ft.
  • Stories:2
  • Bedrooms:3
  • Full Baths:2
© 2023 Architects Northwest All Rights Reserved Powered By: Visualwebz