Plan Pricing

$0

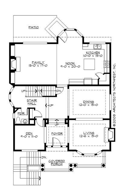
WINSLOW HEIGHTS

M2995A2FU-20
  • Total Area:2955 Sq. Ft.
  • Garage Area:825 Sq Ft
  • Garage Size:2
  • Stories:3
  • Bedrooms:4
  • Full Baths:3
  • Half Baths:1
  • Width:36'-0"
  • Depth:52'-6"
  • Height:28'-6"
  • Foundation:Slab
PLAN DETAILS FOR THE WINSLOW HEIGHTS - PLAN M2995A2FU-20
Area Summary
  • Total Area:2955 Sq. Ft.
  • Main Floor:1500 Sq. Ft.
  • Upper Floor:1415 Sq. Ft.
  • Lower Floor:40 Sq. Ft.
  • Garage Floor:825 Sq. Ft.
General Information
  • Stories:3
  • Width:36'-0"
  • Depth:52'-6"
  • Height:28'-6"
Architectural Style
  • Hampton
  • Shingle
  • Traditional
Number of Rooms
  • Bedrooms:4
  • Full Baths:3
  • Half Baths:1
Garage
  • Garage Size:2
  • Garage Door Location:Front
  • Garage Type: Under
Roof Pitches
  • Primary:6:12
  • Secondary:4:12
Wall Heights
  • Main:9'-0"
  • Upper:8'-0"
  • Lower:9'-0"
Foundation Type
  • Slab On Grade
Roof Framing
  • Trusses
Floor Load
  • Live (lbs):40 PSF
  • Dead (lbs):10 PSF
Roof Load
  • Live (lbs):25 PSF
  • Dead (lbs):15 PSF
  • Wind:85 MPH
Design Features
  • Den/Office
  • Front Porch
  • Great Room
  • Laundry Room @ & Upper Floor
  • Master Bedroom @ Upper Floor Front
  • Hampton House Plans
  • Shingle House Plans
  • Traditional House Plans
Front Photo

Winslow

M2995A2FU-0
  • Total Area:2995 Sq. Ft.
  • Stories:3
  • Bedrooms:3
  • Full Baths:2
Front Rendering

Winslow Ridge

M2995A2FU-15
  • Total Area:2995 Sq. Ft.
  • Stories:3
  • Bedrooms:3
  • Full Baths:2
Please enter the zip code of your building site, then select the Go! button to view pricing information for this house plan.

Recent View

Front Rendering

Everett Ridge

M1870A2F-1DB
  • Total Area:2807 Sq. Ft.
  • Stories:3
  • Bedrooms:4
  • Full Baths:3
Front Photo

Glendale

M3432A3FT-1
  • Total Area:3857 Sq. Ft.
  • Stories:2
  • Bedrooms:4
  • Full Baths:4
Front PHoto

Larissa

M3710A3FT-0
  • Total Area:3702 Sq. Ft.
  • Stories:2
  • Bedrooms:5
  • Full Baths:4
Front Rendering

Newcastle

M3200A4ST-0
  • Total Area:3200 Sq. Ft.
  • Stories:2
  • Bedrooms:3
  • Full Baths:2
Front Rendering

Isington

M2558A0-0
  • Total Area:2558 Sq. Ft.
  • Stories:2
  • Bedrooms:3
  • Full Baths:2
Front Photo

Berkshire

M5668A0-0DB
  • Total Area:5668 Sq. Ft.
  • Stories:3
  • Bedrooms:5
  • Full Baths:4
Front Rendering

Roosevelt

M3683A3F-0
  • Total Area:3683 Sq. Ft.
  • Stories:2
  • Bedrooms:4
  • Full Baths:3
Front Rendering

Glenhaven

M4750A3F-0
  • Total Area:4750 Sq. Ft.
  • Stories:2
  • Bedrooms:4
  • Full Baths:3
© 2023 Architects Northwest All Rights Reserved Powered By: Visualwebz