Plan Pricing

$0

WINSLOW RIDGE

M2995A2FU-15
  • Total Area:2995 Sq. Ft.
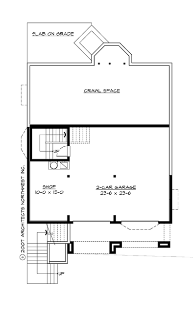
  • Garage Area:792 Sq Ft
  • Garage Size:2
  • Stories:3
  • Bedrooms:3
  • Full Baths:2
  • Half Baths:1
  • Width:36'-0"
  • Depth:52'-6"
  • Height:30'-6"
  • Foundation:Crawl Space
PLAN DETAILS FOR THE WINSLOW RIDGE - PLAN M2995A2FU-15
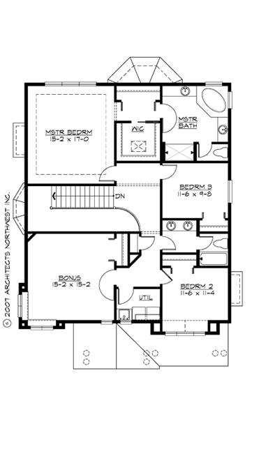
Area Summary
  • Total Area:2995 Sq. Ft.
  • Main Floor:1490 Sq. Ft.
  • Upper Floor:1415 Sq. Ft.
  • Garage Floor:792 Sq. Ft.
General Information
  • Stories:3
  • Width:36'-0"
  • Depth:52'-6"
  • Height:30'-6"
Architectural Style
  • Hampton
  • Shingle
  • Traditional
Number of Rooms
  • Bedrooms:3
  • Full Baths:2
  • Half Baths:1
Garage
  • Garage Size:2
  • Garage Door Location:Front
  • Garage Type: Under
Roof Pitches
  • Primary:8:12
  • Secondary:4:12
Wall Heights
  • Main:9'-0"
  • Upper:8'-0"
  • Lower:9'-0"
Foundation Type
  • Crawl Space
Roof Framing
  • Trusses
Floor Load
  • Live (lbs):40 PSF
  • Dead (lbs):10 PSF
Roof Load
  • Live (lbs):25 PSF
  • Dead (lbs):15 PSF
  • Wind:85 MPH
Design Features
  • Bonus Space @ & Upper Floor
  • Den/Office
  • Front Porch
  • Great Room
  • Laundry Room @ & Upper Floor
  • Master Bedroom @ Upper Floor Rear
  • Hampton House Plans
  • Shingle House Plans
  • Traditional House Plans
Front Photo

Winslow

M2995A2FU-0
  • Total Area:2995 Sq. Ft.
  • Stories:3
  • Bedrooms:3
  • Full Baths:2
Front Rendering

Winslow Heights

M2995A2FU-20
  • Total Area:2955 Sq. Ft.
  • Stories:3
  • Bedrooms:4
  • Full Baths:3
Please enter the zip code of your building site, then select the Go! button to view pricing information for this house plan.

Recent View

© 2023 Architects Northwest All Rights Reserved Powered By: Visualwebz