Plan Pricing

$0

TRILLIUM

M3280A3F-0
  • Total Area:3280 Sq. Ft.
  • Garage Area:813 Sq Ft
  • Garage Size:3
  • Stories:2
  • Bedrooms:4
  • Full Baths:2
  • Half Baths:1
  • Width:68'-0"
  • Depth:49'-0"
  • Height:30'-0"
  • Foundation:Crawl Space
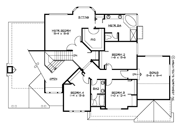
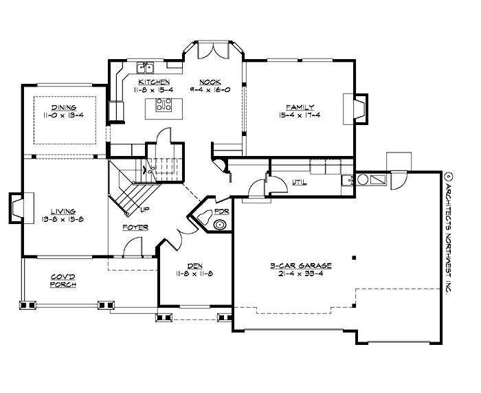
PLAN DETAILS FOR THE TRILLIUM - PLAN M3280A3F-0
Area Summary
  • Total Area:3280 Sq. Ft.
  • Main Floor:1610 Sq. Ft.
  • Upper Floor:1670 Sq. Ft.
  • Garage Floor:813 Sq. Ft.
General Information
  • Stories:2
  • Width:68'-0"
  • Depth:49'-0"
  • Height:30'-0"
Architectural Style
  • Hampton
  • Shingle
  • Traditional
Number of Rooms
  • Bedrooms:4
  • Full Baths:2
  • Half Baths:1
Garage
  • Garage Size:3
  • Garage Door Location:Front
Roof Pitches
  • Primary:8:12
Wall Heights
  • Main:9'-0"
  • Upper:8'-0"
Foundation Type
  • Crawl Space
Roof Framing
  • Combination
Floor Load
  • Live (lbs):40 PSF
  • Dead (lbs):10 PSF
Roof Load
  • Live (lbs):25 PSF
  • Dead (lbs):15 PSF
  • Wind:85 MPH
Design Features
  • Bonus Space @ & Upper Floor
  • Den/Office
  • Front Porch
  • Great Room
  • Laundry Room @ Main Floor
  • Master Bedroom @ Upper Floor Rear
  • Hampton House Plans
  • Shingle House Plans
  • Traditional House Plans
  • View Lot (Rear) Plans
  • Wide Lot House Plans
Front Photo

Mercerwood

M2330C3F-0
  • Total Area:2330 Sq. Ft.
  • Stories:2
  • Bedrooms:3
  • Full Baths:2
Front Rendering

Suncadia

M2625A3F-0
  • Total Area:2625 Sq. Ft.
  • Stories:2
  • Bedrooms:4
  • Full Baths:2
Front Photo

Trillium Park

M3015A3F-0
  • Total Area:3015 Sq. Ft.
  • Stories:2
  • Bedrooms:4
  • Full Baths:2
Front Rendering

Trillium Park Ridge

M3015A3F-0DB
  • Total Area:4080 Sq. Ft.
  • Stories:3
  • Bedrooms:5
  • Full Baths:3
Front Photo

Trillium Lane

M3215A3F-0
  • Total Area:3215 Sq. Ft.
  • Stories:2
  • Bedrooms:4
  • Full Baths:3
Front Photo

Trillium Lane Ridge

M3215A3F-0DB
  • Total Area:4415 Sq. Ft.
  • Stories:3
  • Bedrooms:5
  • Full Baths:4
Front Rendering

Trillium Ridge

M3280A3F-0DB
  • Total Area:4377 Sq. Ft.
  • Stories:3
  • Bedrooms:5
  • Full Baths:3
Please enter the zip code of your building site, then select the Go! button to view pricing information for this house plan.

Recent View

Front Rendering

Harbor Pointe

M2645A3F-0
  • Total Area:2810 Sq. Ft.
  • Stories:2
  • Bedrooms:4
  • Full Baths:2
Front Photo

Kalispell Crest

M3305A2F-7DB
  • Total Area:4294 Sq. Ft.
  • Stories:3
  • Bedrooms:5
  • Full Baths:3
Front Rendering

Jordan

M2981A2F-0
  • Total Area:2981 Sq. Ft.
  • Stories:2
  • Bedrooms:3
  • Full Baths:2
Front Rendering

Creston

M3455C3FT-0
  • Total Area:3550 Sq. Ft.
  • Stories:2
  • Bedrooms:4
  • Full Baths:3
Front Rendering

Leota

M3445F3FT-0
  • Total Area:3585 Sq. Ft.
  • Stories:2
  • Bedrooms:4
  • Full Baths:3
Front Photo

Winslow

M2995A2FU-0
  • Total Area:2995 Sq. Ft.
  • Stories:3
  • Bedrooms:3
  • Full Baths:2
Front Photo

McNally

M4989A3FT-0
  • Total Area:4447 Sq. Ft.
  • Stories:2
  • Bedrooms:5
  • Full Baths:4
Front Photo

Alston Park

M3452A2F-0FB
  • Total Area:4911 Sq. Ft.
  • Stories:3
  • Bedrooms:4
  • Full Baths:4
© 2023 Architects Northwest All Rights Reserved Powered By: Visualwebz