Plan Pricing

$0

TRILLIUM LANE RIDGE

M3215A3F-0DB
  • Total Area:4415 Sq. Ft.
  • Garage Area:885 Sq Ft
  • Garage Size:3
  • Stories:3
  • Bedrooms:5
  • Full Baths:4
  • Half Baths:1
  • Width:68'-0"
  • Depth:55'-0"
  • Height:30'-6"
  • Foundation:Basement
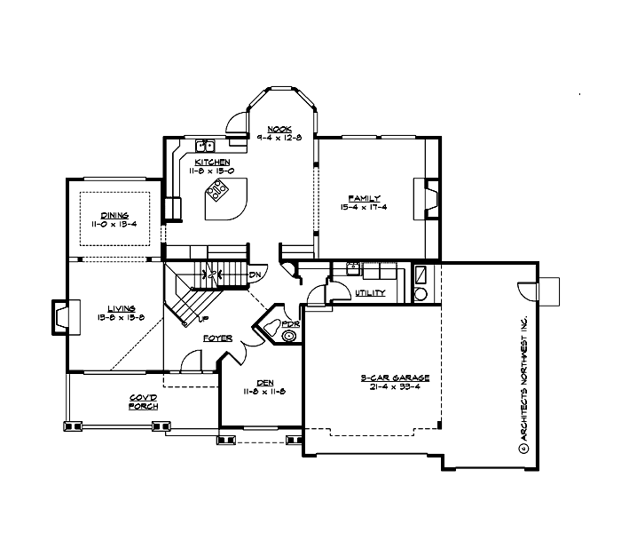
PLAN DETAILS FOR THE TRILLIUM LANE RIDGE - PLAN M3215A3F-0DB
Area Summary
  • Total Area:4415 Sq. Ft.
  • Main Floor:1686 Sq. Ft.
  • Upper Floor:1529 Sq. Ft.
  • Lower Floor:1200 Sq. Ft.
  • Garage Floor:885 Sq. Ft.
General Information
  • Stories:3
  • Width:68'-0"
  • Depth:55'-0"
  • Height:30'-6"
Architectural Style
  • Hampton
  • Shingle
  • Traditional
Number of Rooms
  • Bedrooms:5
  • Full Baths:4
  • Half Baths:1
Garage
  • Garage Size:3
  • Garage Door Location:Front
Roof Pitches
  • Primary:8:12
Wall Heights
  • Main:9'-0"
  • Upper:8'-0"
  • Lower:8'-0"
Foundation Type
  • Daylight Basement
Roof Framing
  • Combination
Floor Load
  • Live (lbs):40 PSF
  • Dead (lbs):10 PSF
Roof Load
  • Live (lbs):25 PSF
  • Dead (lbs):15 PSF
  • Wind:85 MPH
Design Features
  • Bonus Space @ & Lower Floor
  • Den/Office
  • Front Porch
  • Great Room
  • Laundry Room @ Main Floor
  • Master Bedroom @ Upper Floor Rear
  • Hampton House Plans
  • Shingle House Plans
  • Traditional House Plans
  • Wide Lot House Plans
Front Photo

Mercerwood

M2330C3F-0
  • Total Area:2330 Sq. Ft.
  • Stories:2
  • Bedrooms:3
  • Full Baths:2
Front Rendering

Suncadia

M2625A3F-0
  • Total Area:2625 Sq. Ft.
  • Stories:2
  • Bedrooms:4
  • Full Baths:2
Front Photo

Trillium Park

M3015A3F-0
  • Total Area:3015 Sq. Ft.
  • Stories:2
  • Bedrooms:4
  • Full Baths:2
Front Rendering

Trillium Park Ridge

M3015A3F-0DB
  • Total Area:4080 Sq. Ft.
  • Stories:3
  • Bedrooms:5
  • Full Baths:3
Front Photo

Trillium Lane

M3215A3F-0
  • Total Area:3215 Sq. Ft.
  • Stories:2
  • Bedrooms:4
  • Full Baths:3
Front Exterior

Trillium

M3280A3F-0
  • Total Area:3280 Sq. Ft.
  • Stories:2
  • Bedrooms:4
  • Full Baths:2
Front Rendering

Trillium Ridge

M3280A3F-0DB
  • Total Area:4377 Sq. Ft.
  • Stories:3
  • Bedrooms:5
  • Full Baths:3
Please enter the zip code of your building site, then select the Go! button to view pricing information for this house plan.

Recent View

© 2023 Architects Northwest All Rights Reserved Powered By: Visualwebz