Plan Pricing

$0

WEBSTER

M1610A2F-0
  • Total Area:1610 Sq. Ft.
  • Garage Area:415 Sq Ft
  • Garage Size:2
  • Stories:2
  • Bedrooms:4
  • Full Baths:2
  • Half Baths:1
  • Width:20'-0"
  • Depth:56'-0"
  • Height:21'-6"
  • Foundation:Crawl Space
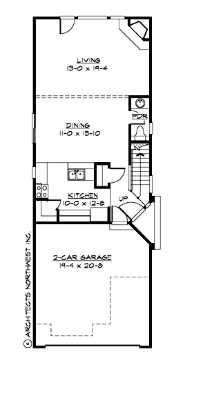
PLAN DETAILS FOR THE WEBSTER - PLAN M1610A2F-0
Area Summary
  • Total Area:1610 Sq. Ft.
  • Main Floor:693 Sq. Ft.
  • Upper Floor:917 Sq. Ft.
  • Garage Floor:415 Sq. Ft.
General Information
  • Stories:2
  • Width:20'-0"
  • Depth:56'-0"
  • Height:21'-6"
Architectural Style
  • Craftsman
  • Northwest
  • Shotgun
Number of Rooms
  • Bedrooms:4
  • Full Baths:2
  • Half Baths:1
Garage
  • Garage Size:2
  • Garage Door Location:Front
Roof Pitches
  • Primary:5:12
Wall Heights
  • Main:8'-0"
  • Upper:8'-0"
Foundation Type
  • Crawl Space
Roof Framing
  • Trusses
Floor Load
  • Live (lbs):40 PSF
  • Dead (lbs):10 PSF
Roof Load
  • Live (lbs):25 PSF
  • Dead (lbs):15 PSF
  • Wind:85 MPH
Design Features
  • Great Room
  • Laundry Room @ & Upper Floor
  • Master Bedroom @ Upper Floor Front
  • Craftsman House Plans
  • Northwest Floor Plans
  • Shotgun Floor Plans
  • Narrow Lot House Plans
  • Small House Plans
Please enter the zip code of your building site, then select the Go! button to view pricing information for this house plan.

Recent View

Front Rendering

Moss Crest

M1460C2F-0
  • Total Area:1460 Sq. Ft.
  • Stories:2
  • Bedrooms:3
  • Full Baths:2
Front Rendering

Morgan

M1488B2FU-0
  • Total Area:1488 Sq. Ft.
  • Stories:3
  • Bedrooms:4
  • Full Baths:2
© 2023 Architects Northwest All Rights Reserved Powered By: Visualwebz