Plan Pricing

$0

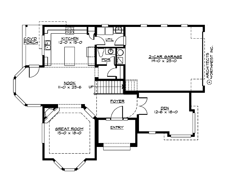
PORT TOWNSEND

M2775A2S-0
  • Total Area:2775 Sq. Ft.
  • Garage Area:480 Sq Ft
  • Garage Size:2
  • Stories:2
  • Bedrooms:3
  • Full Baths:2
  • Half Baths:1
  • Width:57'-0"
  • Depth:43'-0"
  • Height:29'-0"
  • Foundation:Crawl Space
PLAN DETAILS FOR THE PORT TOWNSEND - PLAN M2775A2S-0
Area Summary
  • Total Area:2775 Sq. Ft.
  • Main Floor:1200 Sq. Ft.
  • Upper Floor:1575 Sq. Ft.
  • Garage Floor:480 Sq. Ft.
General Information
  • Stories:2
  • Width:57'-0"
  • Depth:43'-0"
  • Height:29'-0"
Architectural Style
  • Cottage
  • Hampton
  • Traditional
Number of Rooms
  • Bedrooms:3
  • Full Baths:2
  • Half Baths:1
Garage
  • Garage Size:2
  • Garage Door Location:Side
Roof Pitches
  • Primary:8:12
  • Secondary:12:12
Wall Heights
  • Main:9'-0"
  • Upper:8'-0"
Foundation Type
  • Crawl Space
Roof Framing
  • Trusses
Floor Load
  • Live (lbs):40 PSF
  • Dead (lbs):10 PSF
Roof Load
  • Live (lbs):25 PSF
  • Dead (lbs):15 PSF
  • Wind:85 MPH
Design Features
  • Bonus Space @ & Upper Floor
  • Den/Office
  • Great Room
  • Laundry Room @ Main Floor
  • Master Bedroom @ Upper Floor Front
  • Cottage House Plans
  • Hampton House Plans
  • Traditional House Plans
  • Small House Plans
Please enter the zip code of your building site, then select the Go! button to view pricing information for this house plan.

Recent View

© 2023 Architects Northwest All Rights Reserved Powered By: Visualwebz